Vestengveien 12B, Indre østfold

Har annonselink

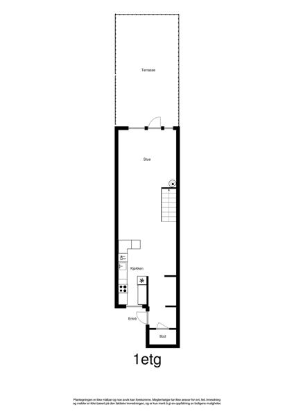
Leiligheten i Vestengveien 12B fra 1977 har en størrelse på 94 m² og inneholder blant annet 3 soverom. Ifølge eier er dette et barnevennlig område, med turterreng i nærheten. Eiendommen ligger sentralt til med parkering, ildsted, og balkong/terrasse.

Bilder fra 07 November 2017

Egenskaper

Primærrom ikon Primærrom:
94 m2
Bruksareal ikon Bruksareal:
96 m2
Bruttoareal ikon Bruttoareal:
105 m2
Antall soverom ikon Antall soverom:
3
Boligtype ikon Boligtype:
Leilighet
Etasje ikon Etasje:
1
Byggear ikon Byggear:
1977
Marketstatus ikon Marketstatus:
Solgt

Fasiliteter

Parkering ikon Parkering
Peis/Ildsted ikon Peis/Ildsted
Balkong/Terrasse ikon Balkong/Terrasse
Hage ikon Hage
Barnevennlig ikon Barnevennlig
Sentralt ikon Sentralt
Turterreng ikon Turterreng
Bredbånd ikon Bredbånd

Salgshistorikk

Dato

Hendelse

Pris

02 Mai 2018
Tinglyst salg
1 150 000
09 Januar 2018
1 150 000
13 April 2011
Tinglyst salg
Ukjent pris
20 November 2006
Tinglyst salg
Ukjent pris

Selge boligSelge bolig?

Finn den beste eiendomsmegleren for ditt boligsalg ved å sammenligne flere meglerkjeder.

Start her

VerdivurderingVerdivurdering?

Få en verdivurdering på boligen om du vurderer å selge, trenger finansieringsbevis eller skal refinansiere boliglånet

Start her

I samarbeid med Marketplace

Vis interesse:

Ønsker du å vise interesse i å kjøpe denne eiendommen eller ønsker ytterligere informasjon, så kan du klikke på “Vis interesse” knappen over. En megler vil ta kontakt for videre dialog.

Legg til i favoritter:

Legg til denne boligen som en favoritt. Vi vil holde deg oppdatert på e-post hvis det er noen endringer for boligen.

Er dette din bolig?:

Er du eier av boligen kan du klikke på “Er dette din bolig?” knappen over. Du vil kunne se om noen har vist interesse for boligen og ha muligheten til å endre bilder samt legge til eller redigere informasjon for å gjøre eiendommen mer attraktiv og klar for et potensielt salg.

Nylig solgte boliger i samme borettslag

Leiligheten er en del av Vesteng Borettslag.

Hjem uten bilde
15 Juli 2025
Vestengveien 28C
Til salgs
Har annonselink
Rekkehus icon Rekkehus
Bed icon 2
Hjem uten bilde
01 Juli 2025
Vestengveien 12C
Solgt Juli 2025
Har annonselink
Area primary icon 89 m²
Rekkehus icon Rekkehus
Bed icon 3
Hjem uten bilde
17 Juni 2025
Vestengveien 22F
Solgt Juni 2025
Har annonselink
Area primary icon 66 m²
Leilighet icon Leilighet
Bed icon 2