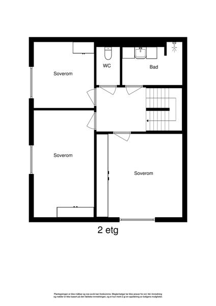
Denne eiendommen i Munkebekken 318 fra 1986 har en størrelse på 115 m² og inneholder blant annet 1 bad og 3 soverom. Ifølge eier er dette et barnevennlig område, med turterreng i nærheten. Eiendommen ligger sentralt til med parkering, og balkong/terrasse.

Bilder fra 22 September 2017

Egenskaper

Primærrom ikon Primærrom:
115 m2
Bruksareal ikon Bruksareal:
115 m2
Bruttoareal ikon Bruttoareal:
127 m2
Antall soverom ikon Antall soverom:
3
Antall bad ikon Antall bad:
1
Boligtype ikon Boligtype:
Tomannsbolig
Etasje ikon Etasje:
1
Byggear ikon Byggear:
1986
Marketstatus ikon Marketstatus:
Solgt
Bydel:
Alna

Fasiliteter

Parkering ikon Parkering
Balkong/Terrasse ikon Balkong/Terrasse
Hage ikon Hage
Barnevennlig ikon Barnevennlig
Sentralt ikon Sentralt
Moderne ikon Moderne
Turterreng ikon Turterreng
Bredbånd ikon Bredbånd

Salgshistorikk

Dato

Hendelse

Pris

11 April 2018
Tinglyst salg
4 600 000
18 Februar 2018
4 700 000
07 Juni 2013
Tinglyst salg
3 600 000
29 April 2013
3 190 000
25 Oktober 2010
Tinglyst salg
2 210 000
14 Desember 2006
Tinglyst salg
Ukjent pris

Selge boligSelge bolig?

Finn den beste eiendomsmegleren for ditt boligsalg ved å sammenligne flere meglerkjeder.

Start her

VerdivurderingVerdivurdering?

Få en verdivurdering på boligen om du vurderer å selge, trenger finansieringsbevis eller skal refinansiere boliglånet

Start her

I samarbeid med Marketplace

Vis interesse:

Ønsker du å vise interesse i å kjøpe denne eiendommen eller ønsker ytterligere informasjon, så kan du klikke på “Vis interesse” knappen over. En megler vil ta kontakt for videre dialog.

Legg til i favoritter:

Legg til denne boligen som en favoritt. Vi vil holde deg oppdatert på e-post hvis det er noen endringer for boligen.

Er dette din bolig?:

Er du eier av boligen kan du klikke på “Er dette din bolig?” knappen over. Du vil kunne se om noen har vist interesse for boligen og ha muligheten til å endre bilder samt legge til eller redigere informasjon for å gjøre eiendommen mer attraktiv og klar for et potensielt salg.

Nylig solgte boliger i samme borettslag

Hjemmet er en del av Ellingsrudflaten Borettslag.

Hjem uten bilde
31 Mars 2026
Munkebekken 211
Solgt Mars 2026
Har annonselink
Area primary icon 107 m²
Tomannsbolig icon Tomannsbolig
Shower icon 1
Bed icon 5
Hjem uten bilde
29 Mars 2026
Munkebekken 191
Til salgs
Har annonselink
Area primary icon 140 m²
Tomannsbolig icon Tomannsbolig
Shower icon 1
Bed icon 4
Hjem uten bilde
01 Desember 2025
Munkebekken 342
Solgt Desember 2025
Har annonselink
Area primary icon 107 m²
Tomannsbolig icon Tomannsbolig
Shower icon 1
Bed icon 4