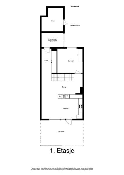
Denne eiendommen i Lindebergveien 65C fra 1976 har en størrelse på 111 m² og inneholder blant annet 1 bad og 3 soverom. Ifølge eier er dette et barnevennlig område, med turterreng i nærheten. Eiendommen ligger sentralt til med parkering, og balkong/terrasse.

Bilder fra 07 Desember 2017

Egenskaper

Primærrom ikon Primærrom:
111 m2
Bruksareal ikon Bruksareal:
111 m2
Bruttoareal ikon Bruttoareal:
122 m2
Antall soverom ikon Antall soverom:
3
Antall bad ikon Antall bad:
1
Boligtype ikon Boligtype:
Rekkehus
Etasje ikon Etasje:
1
Byggear ikon Byggear:
1976
Marketstatus ikon Marketstatus:
Solgt
Bydel:
Alna

Fasiliteter

Parkering ikon Parkering
Balkong/Terrasse ikon Balkong/Terrasse
Hage ikon Hage
Barnevennlig ikon Barnevennlig
Sentralt ikon Sentralt
Turterreng ikon Turterreng
Utsikt ikon Utsikt

Salgshistorikk

Dato

Hendelse

Pris

02 Oktober 2023
Tinglyst salg
5 150 000
11 April 2018
Tinglyst salg
4 150 000
13 Desember 2017
4 150 000
31 Oktober 2016
Tinglyst salg
3 500 000
09 September 2016
3 350 000
18 April 2007
Tinglyst salg
2 400 000
14 Desember 2006
Tinglyst salg
Ukjent pris

Selge boligSelge bolig?

Finn den beste eiendomsmegleren for ditt boligsalg ved å sammenligne flere meglerkjeder.

Start her

VerdivurderingVerdivurdering?

Få en verdivurdering på boligen om du vurderer å selge, trenger finansieringsbevis eller skal refinansiere boliglånet

Start her

I samarbeid med Marketplace

Vis interesse:

Ønsker du å vise interesse i å kjøpe denne eiendommen eller ønsker ytterligere informasjon, så kan du klikke på “Vis interesse” knappen over. En megler vil ta kontakt for videre dialog.

Legg til i favoritter:

Legg til denne boligen som en favoritt. Vi vil holde deg oppdatert på e-post hvis det er noen endringer for boligen.

Er dette din bolig?:

Er du eier av boligen kan du klikke på “Er dette din bolig?” knappen over. Du vil kunne se om noen har vist interesse for boligen og ha muligheten til å endre bilder samt legge til eller redigere informasjon for å gjøre eiendommen mer attraktiv og klar for et potensielt salg.

Nylig solgte boliger i samme borettslag

Rekkehuset er en del av Lindebergskogen Borettslag.

Hjem uten bilde
04 Mai 2026
Lindebergveien 45B
Solgt Mai 2026
Har annonselink
H0103
Area primary icon 104 m²
Leilighet icon Leilighet
Shower icon 2
Bed icon 5
Hjem uten bilde
25 Februar 2026
Lindebergveien 43A
Til salgs
Har annonselink
H0402
Leilighet icon Leilighet
Shower icon 1
Bed icon 1
Hjem uten bilde
02 Februar 2026
Lindebergveien 61E
Solgt Februar 2026
Har annonselink
Area primary icon 94 m²
Rekkehus icon Rekkehus
Shower icon 1
Bed icon 3

Lignende boliger i nærheten

Hjem uten bilde
02 Februar 2026
Lindebergveien 61E
Solgt Februar 2026
Har annonselink
Area primary icon 94 m²
Rekkehus icon Rekkehus
Shower icon 1
Bed icon 3