Jerpefaret 16B, Frogn

Har annonselink

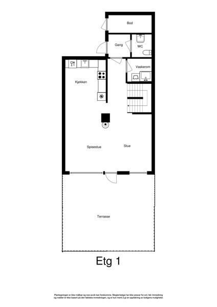
Denne eiendommen i Jerpefaret 16B fra 1984 har en størrelse på 90 m² og inneholder blant annet 1 bad og 3 soverom. Ifølge eier er dette et barnevennlig område, med turterreng i nærheten. Eiendommen ligger sentralt til med parkering, ildsted, og balkong/terrasse.

Bilder fra 01 Februar 2019

Egenskaper

Primærrom ikon Primærrom:
90 m2
Bruksareal ikon Bruksareal:
90 m2
Bruttoareal ikon Bruttoareal:
99 m2
Antall soverom ikon Antall soverom:
3
Antall bad ikon Antall bad:
1
Boligtype ikon Boligtype:
Rekkehus
Etasje ikon Etasje:
2
Byggear ikon Byggear:
1984
Marketstatus ikon Marketstatus:
Solgt

Fasiliteter

Parkering ikon Parkering
Peis/Ildsted ikon Peis/Ildsted
Balkong/Terrasse ikon Balkong/Terrasse
Hage ikon Hage
Barnevennlig ikon Barnevennlig
Sentralt ikon Sentralt
Turterreng ikon Turterreng
Bredbånd ikon Bredbånd

Salgshistorikk

Dato

Hendelse

Pris

03 April 2019
Tinglyst salg
4 500 000
12 Februar 2019
4 250 000
20 November 2006
Tinglyst salg
Ukjent pris

Selge boligSelge bolig?

Finn den beste eiendomsmegleren for ditt boligsalg ved å sammenligne flere meglerkjeder.

Start her

VerdivurderingVerdivurdering?

Få en verdivurdering på boligen om du vurderer å selge, trenger finansieringsbevis eller skal refinansiere boliglånet

Start her

I samarbeid med Marketplace

Vis interesse:

Ønsker du å vise interesse i å kjøpe denne eiendommen eller ønsker ytterligere informasjon, så kan du klikke på “Vis interesse” knappen over. En megler vil ta kontakt for videre dialog.

Legg til i favoritter:

Legg til denne boligen som en favoritt. Vi vil holde deg oppdatert på e-post hvis det er noen endringer for boligen.

Er dette din bolig?:

Er du eier av boligen kan du klikke på “Er dette din bolig?” knappen over. Du vil kunne se om noen har vist interesse for boligen og ha muligheten til å endre bilder samt legge til eller redigere informasjon for å gjøre eiendommen mer attraktiv og klar for et potensielt salg.

Nylig solgte boliger i samme borettslag

Rekkehuset er en del av Skorkeberg Borettslag.

Hjem uten bilde
20 Februar 2026
Jerpefaret 12B
Til salgs
Har annonselink
Area primary icon 102 m²
Rekkehus icon Rekkehus
Shower icon 1
Bed icon 3
Hjem uten bilde
13 Februar 2026
Jerpefaret 14C
Til salgs
Har annonselink
Rekkehus icon Rekkehus
Shower icon 1
Bed icon 3
Hjem uten bilde
12 Februar 2026
Jerpefaret 5D
Solgt Februar 2026
Har annonselink
Area primary icon 78 m²
Leilighet icon Leilighet
Shower icon 1
Bed icon 1

Lignende boliger i nærheten

Hjem uten bilde
20 Februar 2026
Jerpefaret 12B
Til salgs
Har annonselink
Area primary icon 102 m²
Rekkehus icon Rekkehus
Shower icon 1
Bed icon 3