Harald Hårfagres vei 32B, Nordre follo

Har annonselink

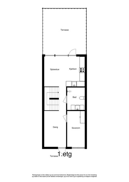
Denne eiendommen i Harald Hårfagres vei 32B fra 1963 har en størrelse på 152 m² og inneholder blant annet 2 bad og 4 soverom. Ifølge eier er dette et barnevennlig område, med turterreng i nærheten. Eiendommen ligger sentralt til med ildsted, og balkong/terrasse.

Bilder fra 26 Juli 2017

Egenskaper

Primærrom ikon Primærrom:
152 m2
Bruksareal ikon Bruksareal:
156 m2
Bruttoareal ikon Bruttoareal:
171 m2
Antall soverom ikon Antall soverom:
4
Antall bad ikon Antall bad:
2
Boligtype ikon Boligtype:
Rekkehus
Etasje ikon Etasje:
1
Byggear ikon Byggear:
1963
Marketstatus ikon Marketstatus:
Solgt

Fasiliteter

Peis/Ildsted ikon Peis/Ildsted
Balkong/Terrasse ikon Balkong/Terrasse
Hage ikon Hage
Barnevennlig ikon Barnevennlig
Sentralt ikon Sentralt
Moderne ikon Moderne
Turterreng ikon Turterreng
Bredbånd ikon Bredbånd

Salgshistorikk

Dato

Hendelse

Pris

16 November 2018
Tinglyst salg
Ukjent pris
06 Desember 2017
Tinglyst salg
4 300 000
05 August 2017
4 050 000
15 Juni 2016
Tinglyst salg
3 950 000
12 Mars 2016
3 890 000
04 November 2011
Tinglyst salg
3 100 000
02 Juni 2010
Tinglyst salg
2 700 000
20 November 2006
Tinglyst salg
Ukjent pris

Selge boligSelge bolig?

Finn den beste eiendomsmegleren for ditt boligsalg ved å sammenligne flere meglerkjeder.

Start her

VerdivurderingVerdivurdering?

Få en verdivurdering på boligen om du vurderer å selge, trenger finansieringsbevis eller skal refinansiere boliglånet

Start her

I samarbeid med Marketplace

Vis interesse:

Ønsker du å vise interesse i å kjøpe denne eiendommen eller ønsker ytterligere informasjon, så kan du klikke på “Vis interesse” knappen over. En megler vil ta kontakt for videre dialog.

Legg til i favoritter:

Legg til denne boligen som en favoritt. Vi vil holde deg oppdatert på e-post hvis det er noen endringer for boligen.

Er dette din bolig?:

Er du eier av boligen kan du klikke på “Er dette din bolig?” knappen over. Du vil kunne se om noen har vist interesse for boligen og ha muligheten til å endre bilder samt legge til eller redigere informasjon for å gjøre eiendommen mer attraktiv og klar for et potensielt salg.

Nylig solgte boliger i samme borettslag

Rekkehuset er en del av Ødegården Borettslag.

Hjem uten bilde
15 Desember 2025
Kongeveien 15C
Solgt Desember 2025
Har annonselink
Area primary icon 96 m²
Rekkehus icon Rekkehus
Shower icon 1
Bed icon 3
Hjem uten bilde
05 Desember 2025
Kongeveien 22
Til salgs
Har annonselink
H0202
Area primary icon 70 m²
Leilighet icon Leilighet
Shower icon 1
Bed icon 2
Hjem uten bilde
02 Desember 2025
Harald Hårfagres vei 34B
Til salgs
Har annonselink
H0302
Area primary icon 69 m²
Leilighet icon Leilighet
Shower icon 1
Bed icon 2