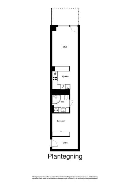
Leiligheten i Christian Krohgs gate 30 fra 2006 har en størrelse på 43 m² og inneholder blant annet 1 bad og 0 soverom. Eiendommen ligger sentralt til med heis, og balkong/terrasse.

Bilder fra 01 November 2018

Egenskaper

Primærrom ikon Primærrom:
43 m2
Bruksareal ikon Bruksareal:
43 m2
Bruttoareal ikon Bruttoareal:
47 m2
Antall bad ikon Antall bad:
1
Boligtype ikon Boligtype:
Leilighet
Etasje ikon Etasje:
1
Byggear ikon Byggear:
2006
Marketstatus ikon Marketstatus:
solgt
Bydel:
Grünerløkka

Fasiliteter

Heis ikon Heis
Balkong/Terrasse ikon Balkong/Terrasse
Sentralt ikon Sentralt
Husdyr tillatt ikon Husdyr tillatt
Bredbånd ikon Bredbånd

Salgshistorikk

Dato

Hendelse

Pris

14 Desember 2021
3 590 000
16 November 2021
Tinglyst salg
3 650 000
08 April 2019
3 100 000
21 Desember 2018
Tinglyst salg
3 100 000
04 Februar 2015
Tinglyst salg
2 200 000
18 Desember 2014
1 990 000
15 November 2013
Tinglyst salg
1 800 000
12 April 2010
Tinglyst salg
392 800
14 Desember 2006
Tinglyst salg
Ukjent pris

Selge boligSelge bolig?

Finn den beste eiendomsmegleren for ditt boligsalg ved å sammenligne flere meglerkjeder.

Start her

VerdivurderingVerdivurdering?

Få en verdivurdering på boligen om du vurderer å selge, trenger finansieringsbevis eller skal refinansiere boliglånet

Start her

I samarbeid med Marketplace

Vis interesse:

Ønsker du å vise interesse i å kjøpe denne eiendommen eller ønsker ytterligere informasjon, så kan du klikke på “Vis interesse” knappen over. En megler vil ta kontakt for videre dialog.

Legg til i favoritter:

Legg til denne boligen som en favoritt. Vi vil holde deg oppdatert på e-post hvis det er noen endringer for boligen.

Er dette din bolig?:

Er du eier av boligen kan du klikke på “Er dette din bolig?” knappen over. Du vil kunne se om noen har vist interesse for boligen og ha muligheten til å endre bilder samt legge til eller redigere informasjon for å gjøre eiendommen mer attraktiv og klar for et potensielt salg.

Nylig solgte boliger i samme borettslag

Leiligheten er en del av Borettslaget Christian Krohgs Gate 30.

Hjem uten bilde
02 Oktober 2025
Christian Krohgs gate 30
Solgt Oktober 2025
Har annonselink
H0614
Area primary icon 76 m²
Leilighet icon Leilighet
Shower icon 1
Bed icon 1
Hjem uten bilde
30 August 2025
Christian Krohgs gate 30
Til salgs
Har annonselink
H0402
Leilighet icon Leilighet
Shower icon 1
Hjem uten bilde
30 August 2025
Christian Krohgs gate 30
Til salgs
Har annonselink
H0708
Leilighet icon Leilighet
Shower icon 1
Bed icon 1

Lignende boliger i nærheten

05 August 2025
Christian Krohgs gate 30
Til salgs
Har annonselink
H0414
Area primary icon 41 m²
Leilighet icon Leilighet
Shower icon 1
Hjem uten bilde
12 August 2025
Christian Krohgs gate 30
Til salgs
Har annonselink
H0203
Area primary icon 39 m²
Leilighet icon Leilighet
Shower icon 1
29 August 2025
Christian Krohgs gate 30
Til salgs
Har annonselink
U0107
Area primary icon 39 m²
Leilighet icon Leilighet
Shower icon 1
Hjem uten bilde
21 August 2025
Christian Krohgs gate 30
Til salgs
Har annonselink
H0511
Area primary icon 42 m²
Leilighet icon Leilighet
Shower icon 1
Hjem uten bilde
27 Mai 2025
Christian Krohgs gate 30
Til salgs
Har annonselink
H0513
Area primary icon 46 m²
Leilighet icon Leilighet
Shower icon 1
Hjem uten bilde
22 April 2025
Christian Krohgs gate 30
Solgt April 2025
Har annonselink
H0506
Area primary icon 42 m²
Leilighet icon Leilighet
Shower icon 1