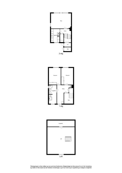
Denne eiendommen i Asbjørn Dybwads vei 2A fra 1972 har en størrelse på 95 m² og inneholder blant annet 1 bad og 2 soverom.

Bilder fra 18 August 2015

Egenskaper

Primærrom ikon Primærrom:
95 m2
Bruksareal ikon Bruksareal:
101 m2
Bruttoareal ikon Bruttoareal:
107 m2
Antall soverom ikon Antall soverom:
2
Antall bad ikon Antall bad:
1
Boligtype ikon Boligtype:
Rekkehus
Etasje ikon Etasje:
1
Byggear ikon Byggear:
1972
Marketstatus ikon Marketstatus:
Til salgs

Fasiliteter

Salgshistorikk

Dato

Hendelse

Pris

04 Februar 2026
4 990 000
27 Mai 2025
5 150 000
30 Juni 2023
Tinglyst salg
4 950 000
19 Mai 2023
4 400 000
06 Februar 2020
Tinglyst salg
1 500 000
02 November 2015
Tinglyst salg
2 520 000
05 August 2015
2 520 000
14 April 2011
Tinglyst salg
1 510 000
08 Januar 2010
Tinglyst salg
1 510 000
29 Oktober 2004
Tinglyst salg
Ukjent pris

Selge boligSelge bolig?

Finn den beste eiendomsmegleren for ditt boligsalg ved å sammenligne flere meglerkjeder.

Start her

VerdivurderingVerdivurdering?

Få en verdivurdering på boligen om du vurderer å selge, trenger finansieringsbevis eller skal refinansiere boliglånet

Start her

I samarbeid med Marketplace

Vis interesse:

Ønsker du å vise interesse i å kjøpe denne eiendommen eller ønsker ytterligere informasjon, så kan du klikke på “Vis interesse” knappen over. En megler vil ta kontakt for videre dialog.

Legg til i favoritter:

Legg til denne boligen som en favoritt. Vi vil holde deg oppdatert på e-post hvis det er noen endringer for boligen.

Er dette din bolig?:

Er du eier av boligen kan du klikke på “Er dette din bolig?” knappen over. Du vil kunne se om noen har vist interesse for boligen og ha muligheten til å endre bilder samt legge til eller redigere informasjon for å gjøre eiendommen mer attraktiv og klar for et potensielt salg.

Lignende boliger i nærheten

Hjem uten bilde
27 November 2025
Asbjørn Dybwads vei 2D
Til salgs
Har annonselink
Area primary icon 94 m²
Rekkehus icon Rekkehus
Shower icon 1
Bed icon 2