Liljekroken 28, Drammen

Have ad link

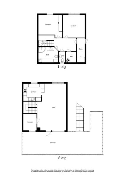
The house in Liljekroken 28 from 1982 have a size of 103 m² and contains among other things 3 bedrooms. According to the owner, this is a child-friendly area, with hiking terrain nearby. The property has parking.

Images from 31 May 2019

Characteristics

Area primary icon Area primary:
103 m2
Area usable icon Area usable:
107 m2
Area gross icon Area gross:
118 m2
Bedrooms icon Bedrooms:
3
Unittype icon Unittype:
Detached house
Floor icon Floor:
1
Construction year icon Construction year:
1982
Marketstatus icon Marketstatus:
Sold

Facilities

Parking icon Parking
Garden icon Garden
Child friendly icon Child friendly
Hiking terrain icon Hiking terrain
Pets allowed icon Pets allowed
View icon View

Sale history

Date

Action

Price

23 July 2019
Registered sale
2 335 000
27 June 2019
2 300 000
03 December 2012
Registered sale
1 800 000
20 November 2006
Registered sale
Unknown price

Sell your homeSelge bolig?

Finn den beste eiendomsmegleren for ditt boligsalg ved å sammenligne flere meglerkjeder.

Start her

VerdivurderingVerdivurdering?

Få en verdivurdering på boligen om du vurderer å selge, trenger finansieringsbevis eller skal refinansiere boliglånet

Start her

In partnership with Marketplace

Show interest:

If you want to show interest in buying this property or want further information, you can click on the "Show interest" button above. A broker will contact you for further dialogue.

Add to favorites:

Add this home as a favorite. We will keep you updated by email if there are any changes to the home.

Is this your home?:

If you are the owner of the home, you can click on "Is this your home?" button above. You will be able to see if anyone has shown interest in the home and have the opportunity to change photos as well as add or edit information to make the property more attractive and ready for a potential sale.

Recently sold homes in the same cooperative

The home is part of AL Liljekroken Borettslag.

Home without image
26 August 2025
Liljekroken 52
For sale
Have ad link
Detached house icon Detached house
Bed icon 3
Home without image
25 August 2025
Liljekroken 54
For sale
Have ad link
Detached house icon Detached house
Bed icon 3
Home without image
19 August 2025
Liljekroken 56
For sale
Have ad link
Detached house icon Detached house
Bed icon 3