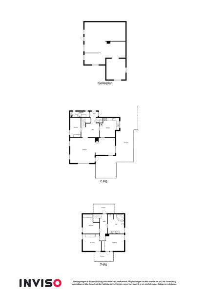
Huset i Vestre Kleppsvegen 10 fra 1955 har en størrelse på 140 m² og inneholder blant annet 4 soverom.

Bilder fra 24 April 2019

Egenskaper

Primærrom ikon Primærrom:
140 m2
Bruksareal ikon Bruksareal:
225 m2
Antall soverom ikon Antall soverom:
4
Boligtype ikon Boligtype:
Enebolig
Etasje ikon Etasje:
1
Byggear ikon Byggear:
1955
Marketstatus ikon Marketstatus:
Til salgs

Fasiliteter

Salgshistorikk

Dato

Hendelse

Pris

10 Mars 2026
2 750 000
02 Oktober 2019
Tinglyst salg
2 525 000
18 August 2019
2 790 000
21 Mai 2019
2 790 000
20 Juni 2016
Tinglyst salg
195 000
28 Januar 2010
Tinglyst salg
550 000
28 Januar 2010
Tinglyst salg
Ukjent pris
28 Januar 2010
Tinglyst salg
Ukjent pris
22 Desember 1955
Tinglyst salg
Ukjent pris

Selge boligSelge bolig?

Finn den beste eiendomsmegleren for ditt boligsalg ved å sammenligne flere meglerkjeder.

Start her

VerdivurderingVerdivurdering?

Få en verdivurdering på boligen om du vurderer å selge, trenger finansieringsbevis eller skal refinansiere boliglånet

Start her

I samarbeid med Marketplace

Vis interesse:

Ønsker du å vise interesse i å kjøpe denne eiendommen eller ønsker ytterligere informasjon, så kan du klikke på “Vis interesse” knappen over. En megler vil ta kontakt for videre dialog.

Legg til i favoritter:

Legg til denne boligen som en favoritt. Vi vil holde deg oppdatert på e-post hvis det er noen endringer for boligen.

Er dette din bolig?:

Er du eier av boligen kan du klikke på “Er dette din bolig?” knappen over. Du vil kunne se om noen har vist interesse for boligen og ha muligheten til å endre bilder samt legge til eller redigere informasjon for å gjøre eiendommen mer attraktiv og klar for et potensielt salg.