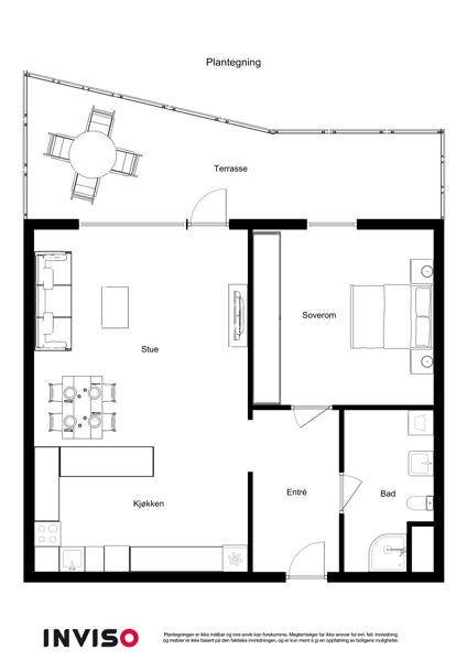
Leiligheten i Utsikten 17 fra 1972 har en størrelse på 46 m² og inneholder blant annet 1 bad og 1 soverom.

Bilder fra 23 Januar 2020

Egenskaper

Primærrom ikon Primærrom:
46 m2
Bruksareal ikon Bruksareal:
58 m2
Bruttoareal ikon Bruttoareal:
63 m2
Antall soverom ikon Antall soverom:
1
Antall bad ikon Antall bad:
1
Boligtype ikon Boligtype:
Leilighet
Etasje ikon Etasje:
3
Byggear ikon Byggear:
1972
Marketstatus ikon Marketstatus:
Solgt

Fasiliteter

Salgshistorikk

Dato

Hendelse

Pris

13 Juli 2025
Ukjent pris
02 August 2022
Tinglyst salg
2 400 000
19 Mai 2022
2 200 000
26 Mars 2020
Tinglyst salg
1 850 000
17 Februar 2020
1 900 000
01 Februar 2020
1 900 000
12 November 2014
Tinglyst salg
1 275 000
27 Oktober 2014
1 275 000
23 August 2013
Tinglyst salg
1 220 000
18 Juli 2013
1 130 000
20 November 2006
Tinglyst salg
Ukjent pris

Selge boligSelge bolig?

Finn den beste eiendomsmegleren for ditt boligsalg ved å sammenligne flere meglerkjeder.

Start her

VerdivurderingVerdivurdering?

Få en verdivurdering på boligen om du vurderer å selge, trenger finansieringsbevis eller skal refinansiere boliglånet

Start her

I samarbeid med Marketplace

Vis interesse:

Ønsker du å vise interesse i å kjøpe denne eiendommen eller ønsker ytterligere informasjon, så kan du klikke på “Vis interesse” knappen over. En megler vil ta kontakt for videre dialog.

Legg til i favoritter:

Legg til denne boligen som en favoritt. Vi vil holde deg oppdatert på e-post hvis det er noen endringer for boligen.

Er dette din bolig?:

Er du eier av boligen kan du klikke på “Er dette din bolig?” knappen over. Du vil kunne se om noen har vist interesse for boligen og ha muligheten til å endre bilder samt legge til eller redigere informasjon for å gjøre eiendommen mer attraktiv og klar for et potensielt salg.

Nylig solgte boliger i samme borettslag

Leiligheten er en del av Glomma Borettslag.

Hjem uten bilde
25 August 2025
Utsikten 17
Til salgs
Har annonselink
U0101
Area primary icon 46 m²
Leilighet icon Leilighet
Bed icon 1
Hjem uten bilde
14 August 2025
Utsikten 17
Solgt August 2025
Har annonselink
H0310
Leilighet icon Leilighet
Shower icon 1
Bed icon 1
Hjem uten bilde
30 Juli 2025
Utsikten 17
Solgt Juli 2025
Har annonselink
H0104
Area primary icon 46 m²
Leilighet icon Leilighet
Shower icon 1
Bed icon 1

Lignende boliger i nærheten

Hjem uten bilde
30 Juli 2025
Utsikten 17
Solgt Juli 2025
Har annonselink
H0104
Area primary icon 46 m²
Leilighet icon Leilighet
Shower icon 1
Bed icon 1
13 Mai 2025
Utsikten 17
Til salgs
Har annonselink
U0203
Area primary icon 46 m²
Leilighet icon Leilighet
Bed icon 1
Hjem uten bilde
25 August 2025
Utsikten 17
Til salgs
Har annonselink
U0101
Area primary icon 46 m²
Leilighet icon Leilighet
Bed icon 1