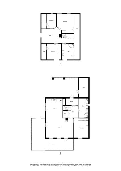
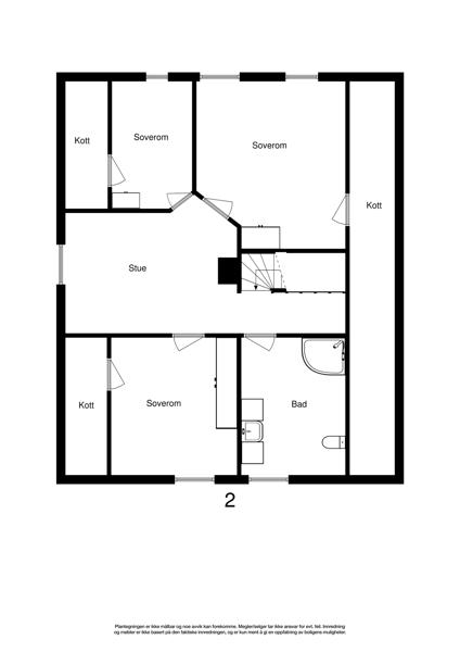
Huset i Tegnestiften 22 fra 1998 har en størrelse på 111 m² og inneholder blant annet 2 bad og 3 soverom.

Bilder fra 22 August 2017

Egenskaper

Primærrom ikon Primærrom:
111 m2
Bruksareal ikon Bruksareal:
127 m2
Bruttoareal ikon Bruttoareal:
123 m2
Antall soverom ikon Antall soverom:
3
Antall bad ikon Antall bad:
2
Boligtype ikon Boligtype:
Enebolig
Etasje ikon Etasje:
1
Byggear ikon Byggear:
1998
Marketstatus ikon Marketstatus:
Til salgs

Fasiliteter

Salgshistorikk

Dato

Hendelse

Pris

17 Februar 2026
3 790 000
22 November 2017
Tinglyst salg
3 150 000
18 September 2017
2 990 000
11 September 1998
Tinglyst salg
187 000
11 Mars 1997
Tinglyst salg
2 000 000

Selge boligSelge bolig?

Finn den beste eiendomsmegleren for ditt boligsalg ved å sammenligne flere meglerkjeder.

Start her

VerdivurderingVerdivurdering?

Få en verdivurdering på boligen om du vurderer å selge, trenger finansieringsbevis eller skal refinansiere boliglånet

Start her

I samarbeid med Marketplace

Vis interesse:

Ønsker du å vise interesse i å kjøpe denne eiendommen eller ønsker ytterligere informasjon, så kan du klikke på “Vis interesse” knappen over. En megler vil ta kontakt for videre dialog.

Legg til i favoritter:

Legg til denne boligen som en favoritt. Vi vil holde deg oppdatert på e-post hvis det er noen endringer for boligen.

Er dette din bolig?:

Er du eier av boligen kan du klikke på “Er dette din bolig?” knappen over. Du vil kunne se om noen har vist interesse for boligen og ha muligheten til å endre bilder samt legge til eller redigere informasjon for å gjøre eiendommen mer attraktiv og klar for et potensielt salg.