Stallovegen 23, Tromsø

Har annonselink

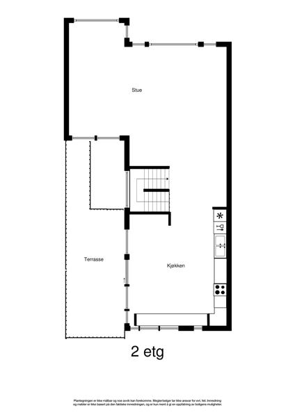
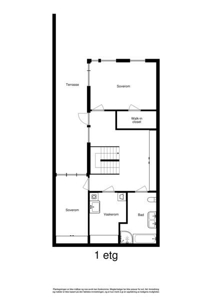
Huset i Stallovegen 23 fra 2003 har en størrelse på 195 m² og inneholder blant annet 1 bad og 4 soverom. Ifølge eier er dette et barnevennlig område, med turterreng i nærheten. Eiendommen har parkering, ildsted, og balkong/terrasse.

Bilder fra 09 August 2017

Egenskaper

Primærrom ikon Primærrom:
195 m2
Bruksareal ikon Bruksareal:
220 m2
Bruttoareal ikon Bruttoareal:
249 m2
Antall soverom ikon Antall soverom:
4
Antall bad ikon Antall bad:
1
Boligtype ikon Boligtype:
Enebolig
Etasje ikon Etasje:
1
Byggear ikon Byggear:
2003
Marketstatus ikon Marketstatus:
Solgt

Fasiliteter

Parkering ikon Parkering
Peis/Ildsted ikon Peis/Ildsted
Balkong/Terrasse ikon Balkong/Terrasse
Hage ikon Hage
Barnevennlig ikon Barnevennlig
Moderne ikon Moderne
Turterreng ikon Turterreng
Utsikt ikon Utsikt
Bredbånd ikon Bredbånd

Salgshistorikk

Dato

Hendelse

Pris

16 Januar 2018
Tinglyst salg
10 300 000
11 September 2017
9 950 000
23 Oktober 2007
Tinglyst salg
6 375 000
19 Mai 2004
Tinglyst salg
3 090 000
15 Mars 2001
Tinglyst salg
15 400 000

Selge boligSelge bolig?

Finn den beste eiendomsmegleren for ditt boligsalg ved å sammenligne flere meglerkjeder.

Start her

VerdivurderingVerdivurdering?

Få en verdivurdering på boligen om du vurderer å selge, trenger finansieringsbevis eller skal refinansiere boliglånet

Start her

I samarbeid med Marketplace

Vis interesse:

Ønsker du å vise interesse i å kjøpe denne eiendommen eller ønsker ytterligere informasjon, så kan du klikke på “Vis interesse” knappen over. En megler vil ta kontakt for videre dialog.

Legg til i favoritter:

Legg til denne boligen som en favoritt. Vi vil holde deg oppdatert på e-post hvis det er noen endringer for boligen.

Er dette din bolig?:

Er du eier av boligen kan du klikke på “Er dette din bolig?” knappen over. Du vil kunne se om noen har vist interesse for boligen og ha muligheten til å endre bilder samt legge til eller redigere informasjon for å gjøre eiendommen mer attraktiv og klar for et potensielt salg.