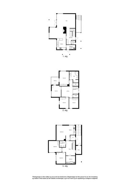
Huset i Somaveien 40 fra 2000 har en størrelse på 221 m² og inneholder blant annet 2 bad og 4 soverom.

Bilder fra 28 April 2015

Egenskaper

Primærrom ikon Primærrom:
221 m2
Bruksareal ikon Bruksareal:
234 m2
Bruttoareal ikon Bruttoareal:
255 m2
Antall soverom ikon Antall soverom:
4
Antall bad ikon Antall bad:
2
Boligtype ikon Boligtype:
Enebolig
Etasje ikon Etasje:
1
Byggear ikon Byggear:
2000
Marketstatus ikon Marketstatus:
Utgått

Fasiliteter

Salgshistorikk

Dato

Hendelse

Pris

12 November 2020
6 200 000
04 August 2020
6 500 000
20 September 2010
Tinglyst salg
5 350 000
13 August 2010
5 350 000
19 Januar 2009
Tinglyst salg
4 700 000
12 Juni 2006
Tinglyst salg
3 400 000
16 Mars 2000
Tinglyst salg
335 000
26 Januar 1998
Tinglyst salg
2 924 700

Selge boligSelge bolig?

Finn den beste eiendomsmegleren for ditt boligsalg ved å sammenligne flere meglerkjeder.

Start her

VerdivurderingVerdivurdering?

Få en verdivurdering på boligen om du vurderer å selge, trenger finansieringsbevis eller skal refinansiere boliglånet

Start her

I samarbeid med Marketplace

Vis interesse:

Ønsker du å vise interesse i å kjøpe denne eiendommen eller ønsker ytterligere informasjon, så kan du klikke på “Vis interesse” knappen over. En megler vil ta kontakt for videre dialog.

Legg til i favoritter:

Legg til denne boligen som en favoritt. Vi vil holde deg oppdatert på e-post hvis det er noen endringer for boligen.

Er dette din bolig?:

Er du eier av boligen kan du klikke på “Er dette din bolig?” knappen over. Du vil kunne se om noen har vist interesse for boligen og ha muligheten til å endre bilder samt legge til eller redigere informasjon for å gjøre eiendommen mer attraktiv og klar for et potensielt salg.