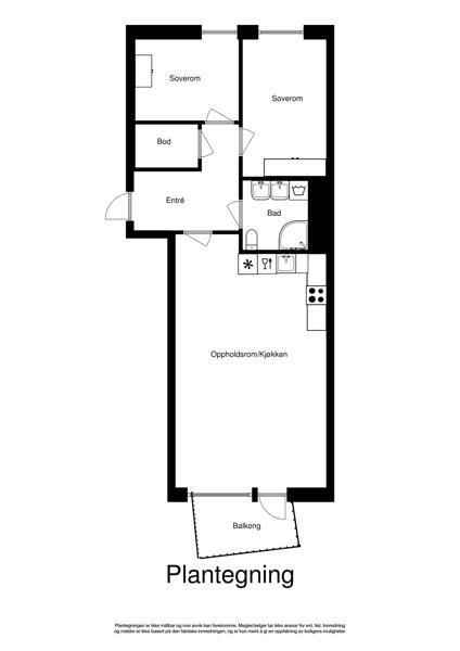
Leiligheten i Siriskjeret 32 fra 2013 har en størrelse på 70 m² og inneholder blant annet 1 bad og 2 soverom. Ifølge eier er dette et barnevennlig område, med turterreng i nærheten. Eiendommen ligger sentralt til med heis, parkering, og balkong/terrasse.

Bilder fra 17 Juni 2015

Egenskaper

Primærrom ikon Primærrom:
70 m2
Bruksareal ikon Bruksareal:
73 m2
Bruttoareal ikon Bruttoareal:
79 m2
Antall soverom ikon Antall soverom:
2
Antall bad ikon Antall bad:
1
Boligtype ikon Boligtype:
Leilighet
Etasje ikon Etasje:
4
Byggear ikon Byggear:
2013
Marketstatus ikon Marketstatus:
Solgt
Bydel:
Storhaug

Fasiliteter

Heis ikon Heis
Parkering ikon Parkering
Balkong/Terrasse ikon Balkong/Terrasse
Barnevennlig ikon Barnevennlig
Sentralt ikon Sentralt
Turterreng ikon Turterreng

Salgshistorikk

Dato

Hendelse

Pris

01 Desember 2025
Tinglyst salg
4 900 000
16 Juni 2022
Tinglyst salg
4 000 000
23 Mars 2022
3 910 000
05 Desember 2018
Tinglyst salg
3 580 000
10 September 2018
3 650 000
26 November 2013
Tinglyst salg
3 975 000
08 Oktober 1997
Tinglyst salg
12 500 000

Selge boligSelge bolig?

Finn den beste eiendomsmegleren for ditt boligsalg ved å sammenligne flere meglerkjeder.

Start her

VerdivurderingVerdivurdering?

Få en verdivurdering på boligen om du vurderer å selge, trenger finansieringsbevis eller skal refinansiere boliglånet

Start her

I samarbeid med Marketplace

Vis interesse:

Ønsker du å vise interesse i å kjøpe denne eiendommen eller ønsker ytterligere informasjon, så kan du klikke på “Vis interesse” knappen over. En megler vil ta kontakt for videre dialog.

Legg til i favoritter:

Legg til denne boligen som en favoritt. Vi vil holde deg oppdatert på e-post hvis det er noen endringer for boligen.

Er dette din bolig?:

Er du eier av boligen kan du klikke på “Er dette din bolig?” knappen over. Du vil kunne se om noen har vist interesse for boligen og ha muligheten til å endre bilder samt legge til eller redigere informasjon for å gjøre eiendommen mer attraktiv og klar for et potensielt salg.

Lignende boliger i nærheten

Hjem uten bilde
10 Januar 2026
Siriskjeret 30
Til salgs
Har annonselink
Area primary icon 81 m²
Leilighet icon Leilighet
Shower icon 1
Bed icon 2
Hjem uten bilde
02 Desember 2025
Siriskjeret 26
Solgt Desember 2025
Har annonselink
H0403
Area primary icon 69 m²
Leilighet icon Leilighet
Shower icon 1
Bed icon 2
Hjem uten bilde
28 Februar 2026
Siriskjeret 25
Til salgs
Har annonselink
H0303
Area primary icon 79 m²
Leilighet icon Leilighet
Shower icon 1
Bed icon 2
15 Desember 2025
Siriskjeret 18
Solgt Desember 2025
Har annonselink
H0401
Area primary icon 63 m²
Leilighet icon Leilighet
Shower icon 1
Bed icon 2
Hjem uten bilde
19 Desember 2025
Tinngata 30
Solgt Desember 2025
Har annonselink
H0207
Area primary icon 65 m²
Leilighet icon Leilighet
Shower icon 1
Bed icon 2