Sømveien 31F, Oslo
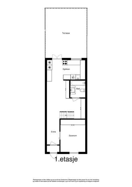
Denne eiendommen i Sømveien 31F fra 1960 har en størrelse på 126 m² og inneholder blant annet 1 bad og 3 soverom.
Bilder fra
05
Juli
2018
Egenskaper
126 m2
130 m2
3
1
Rekkehus
1
1960
Solgt
Bydel:
Nordre Aker
Fasiliteter
Salgshistorikk
Dato
Hendelse
Pris
14 Juli 2025
Tinglyst salg
12 030 000
05 Juni 2019
Tinglyst salg
9 300 000
07 Mars 2014
Tinglyst salg
6 300 000
28 August 2002
Tinglyst salg
2 360 000
23 Mai 1995
Tinglyst salg
1 160 000
07 November 1988
Tinglyst salg
425 000