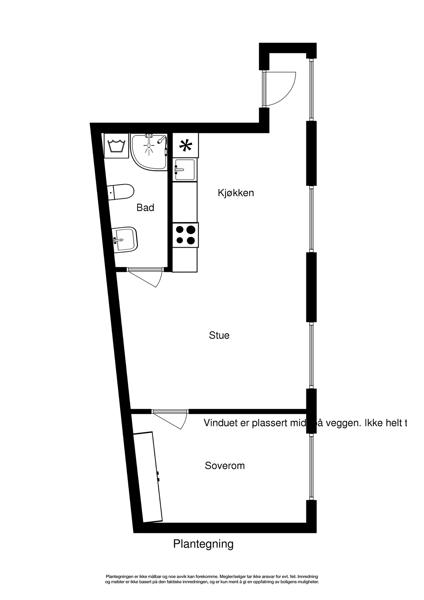
Leiligheten i Repslagergaten 21 fra 1924 har en størrelse på 43 m² og inneholder blant annet 1 bad og 1 soverom.

Bilder fra 23 Januar 2015

Egenskaper

Primærrom ikon Primærrom:
43 m2
Bruksareal ikon Bruksareal:
47 m2
Bruttoareal ikon Bruttoareal:
43 m2
Antall soverom ikon Antall soverom:
1
Antall bad ikon Antall bad:
1
Boligtype ikon Boligtype:
Leilighet
Etasje ikon Etasje:
2
Byggear ikon Byggear:
1924
Marketstatus ikon Marketstatus:
Solgt
Bydel:
Bergenhus

Fasiliteter

Salgshistorikk

Dato

Hendelse

Pris

02 Februar 2026
Tinglyst salg
4 000 000
29 Desember 2025
3 920 000
30 Juni 2021
Tinglyst salg
3 200 000
10 Juni 2021
3 150 000
27 Februar 2017
2 690 000
17 Januar 2017
Tinglyst salg
2 690 000
27 September 2016
2 690 000
16 Mars 2015
Tinglyst salg
2 500 000
13 Februar 2015
2 390 000
28 Juli 2011
Tinglyst salg
2 050 000
12 Februar 2007
Tinglyst salg
7 500 000

Selge boligSelge bolig?

Finn den beste eiendomsmegleren for ditt boligsalg ved å sammenligne flere meglerkjeder.

Start her

VerdivurderingVerdivurdering?

Få en verdivurdering på boligen om du vurderer å selge, trenger finansieringsbevis eller skal refinansiere boliglånet

Start her

I samarbeid med Marketplace

Vis interesse:

Ønsker du å vise interesse i å kjøpe denne eiendommen eller ønsker ytterligere informasjon, så kan du klikke på “Vis interesse” knappen over. En megler vil ta kontakt for videre dialog.

Legg til i favoritter:

Legg til denne boligen som en favoritt. Vi vil holde deg oppdatert på e-post hvis det er noen endringer for boligen.

Er dette din bolig?:

Er du eier av boligen kan du klikke på “Er dette din bolig?” knappen over. Du vil kunne se om noen har vist interesse for boligen og ha muligheten til å endre bilder samt legge til eller redigere informasjon for å gjøre eiendommen mer attraktiv og klar for et potensielt salg.

Lignende boliger i nærheten

Hjem uten bilde
28 Januar 2026
Hans Hauges gate 35
Til salgs
Har annonselink
H0201
Area primary icon 53 m²
Leilighet icon Leilighet
Bed icon 1
Hjem uten bilde
26 November 2025
Hans Hauges gate 23
Solgt November 2025
Har annonselink
H0102
Area primary icon 40 m²
Leilighet icon Leilighet
Shower icon 1
Bed icon 1
Hjem uten bilde
27 Januar 2026
Hans Hauges gate 23
Solgt Januar 2026
Har annonselink
H0302
Area primary icon 42 m²
Leilighet icon Leilighet
Shower icon 1
Bed icon 1
06 Oktober 2025
Repslagergaten 8
Solgt Oktober 2025
Har annonselink
H0402
Area primary icon 41 m²
Leilighet icon Leilighet
Shower icon 1
Bed icon 1
24 September 2025
Repslagergaten 8
Solgt September 2025
Har annonselink
H0401
Area primary icon 42 m²
Leilighet icon Leilighet
Shower icon 1
Bed icon 1