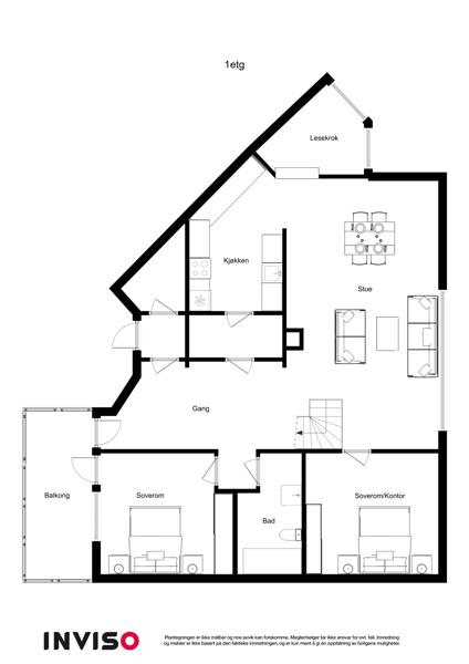
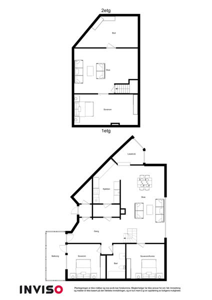
Leiligheten i Randabergveien 372 fra 1989 har en størrelse på 120 m² og inneholder blant annet 1 bad og 2 soverom.

Bilder fra 24 April 2020

Egenskaper

Primærrom ikon Primærrom:
120 m2
Bruksareal ikon Bruksareal:
132 m2
Bruttoareal ikon Bruttoareal:
143 m2
Antall soverom ikon Antall soverom:
2
Antall bad ikon Antall bad:
1
Boligtype ikon Boligtype:
Leilighet
Etasje ikon Etasje:
3
Byggear ikon Byggear:
1989
Marketstatus ikon Marketstatus:
Solgt

Fasiliteter

Salgshistorikk

Dato

Hendelse

Pris

18 Juni 2024
Tinglyst salg
2 900 000
20 Mai 2024
3 100 000
03 Februar 2022
Tinglyst salg
3 000 000
19 August 2020
3 290 000
15 Mai 2012
Tinglyst salg
3 200 000
05 April 2012
3 200 000
21 Januar 2008
Tinglyst salg
2 375 000
01 Juli 1996
Tinglyst salg
880 000
29 Juni 1995
Tinglyst salg
800 000
07 August 1991
Tinglyst salg
650 000
Ukjent dato
Tinglyst salg
Ukjent pris

Selge boligSelge bolig?

Finn den beste eiendomsmegleren for ditt boligsalg ved å sammenligne flere meglerkjeder.

Start her

VerdivurderingVerdivurdering?

Få en verdivurdering på boligen om du vurderer å selge, trenger finansieringsbevis eller skal refinansiere boliglånet

Start her

I samarbeid med Marketplace

Vis interesse:

Ønsker du å vise interesse i å kjøpe denne eiendommen eller ønsker ytterligere informasjon, så kan du klikke på “Vis interesse” knappen over. En megler vil ta kontakt for videre dialog.

Legg til i favoritter:

Legg til denne boligen som en favoritt. Vi vil holde deg oppdatert på e-post hvis det er noen endringer for boligen.

Er dette din bolig?:

Er du eier av boligen kan du klikke på “Er dette din bolig?” knappen over. Du vil kunne se om noen har vist interesse for boligen og ha muligheten til å endre bilder samt legge til eller redigere informasjon for å gjøre eiendommen mer attraktiv og klar for et potensielt salg.