Røsslyngstien 5A, Averøy

Har annonselink

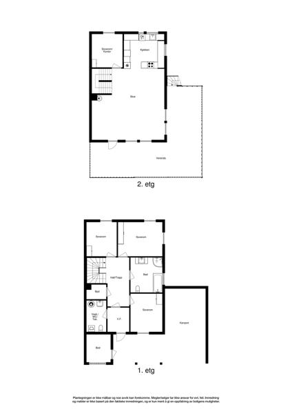
Denne eiendommen i Røsslyngstien 5A fra 2013 har en størrelse på 126 m² og inneholder blant annet 1 bad. Ifølge eier er dette et barnevennlig område, med turterreng i nærheten. Eiendommen har parkering, ildsted, og balkong/terrasse.

Bilder fra 26 April 2018

Egenskaper

Primærrom ikon Primærrom:
126 m2
Bruksareal ikon Bruksareal:
133 m2
Bruttoareal ikon Bruttoareal:
149 m2
Antall bad ikon Antall bad:
1
Boligtype ikon Boligtype:
Tomannsbolig
Etasje ikon Etasje:
1
Byggear ikon Byggear:
2013
Marketstatus ikon Marketstatus:
Solgt

Fasiliteter

Parkering ikon Parkering
Peis/Ildsted ikon Peis/Ildsted
Balkong/Terrasse ikon Balkong/Terrasse
Hage ikon Hage
Barnevennlig ikon Barnevennlig
Moderne ikon Moderne
Turterreng ikon Turterreng
Utsikt ikon Utsikt

Salgshistorikk

Dato

Hendelse

Pris

02 Oktober 2025
Tinglyst salg
1 420 000
17 September 2018
Tinglyst salg
2 730 000
22 Mai 2018
2 790 000
16 November 2017
Tinglyst salg
1 345 000
11 Februar 2013
Tinglyst salg
2 450 000
30 Mars 2012
Tinglyst salg
2 500 000

Selge boligSelge bolig?

Finn den beste eiendomsmegleren for ditt boligsalg ved å sammenligne flere meglerkjeder.

Start her

VerdivurderingVerdivurdering?

Få en verdivurdering på boligen om du vurderer å selge, trenger finansieringsbevis eller skal refinansiere boliglånet

Start her

I samarbeid med Marketplace

Vis interesse:

Ønsker du å vise interesse i å kjøpe denne eiendommen eller ønsker ytterligere informasjon, så kan du klikke på “Vis interesse” knappen over. En megler vil ta kontakt for videre dialog.

Legg til i favoritter:

Legg til denne boligen som en favoritt. Vi vil holde deg oppdatert på e-post hvis det er noen endringer for boligen.

Er dette din bolig?:

Er du eier av boligen kan du klikke på “Er dette din bolig?” knappen over. Du vil kunne se om noen har vist interesse for boligen og ha muligheten til å endre bilder samt legge til eller redigere informasjon for å gjøre eiendommen mer attraktiv og klar for et potensielt salg.