Prost Lassens gate 4, Kristiansand

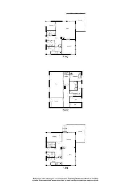
Huset i Prost Lassens gate 4 fra 1936 har en størrelse på 209 m² og inneholder blant annet 2 bad og 4 soverom. Ifølge eier er dette et barnevennlig område, med turterreng i nærheten. Eiendommen ligger sentralt til med parkering, ildsted, og balkong/terrasse.

Bilder fra 03 April 2018

Egenskaper

Primærrom ikon Primærrom:
209 m2
Bruksareal ikon Bruksareal:
248 m2
Antall soverom ikon Antall soverom:
4
Antall bad ikon Antall bad:
2
Boligtype ikon Boligtype:
Enebolig
Etasje ikon Etasje:
1
Byggear ikon Byggear:
1936
Marketstatus ikon Marketstatus:
Solgt

Fasiliteter

Parkering ikon Parkering
Peis/Ildsted ikon Peis/Ildsted
Balkong/Terrasse ikon Balkong/Terrasse
Hage ikon Hage
Barnevennlig ikon Barnevennlig
Sentralt ikon Sentralt
Turterreng ikon Turterreng
Bredbånd ikon Bredbånd

Salgshistorikk

Dato

Hendelse

Pris

04 Oktober 2018
Tinglyst salg
4 310 000
13 August 1996
Tinglyst salg
Ukjent pris
26 April 1996
Tinglyst salg
Ukjent pris
31 Desember 1981
Tinglyst salg
Ukjent pris
30 Desember 1963
Tinglyst salg
Ukjent pris

Selge boligSelge bolig?

Finn den beste eiendomsmegleren for ditt boligsalg ved å sammenligne flere meglerkjeder.

Start her

VerdivurderingVerdivurdering?

Få en verdivurdering på boligen om du vurderer å selge, trenger finansieringsbevis eller skal refinansiere boliglånet

Start her

I samarbeid med Marketplace

Vis interesse:

Ønsker du å vise interesse i å kjøpe denne eiendommen eller ønsker ytterligere informasjon, så kan du klikke på “Vis interesse” knappen over. En megler vil ta kontakt for videre dialog.

Legg til i favoritter:

Legg til denne boligen som en favoritt. Vi vil holde deg oppdatert på e-post hvis det er noen endringer for boligen.

Er dette din bolig?:

Er du eier av boligen kan du klikke på “Er dette din bolig?” knappen over. Du vil kunne se om noen har vist interesse for boligen og ha muligheten til å endre bilder samt legge til eller redigere informasjon for å gjøre eiendommen mer attraktiv og klar for et potensielt salg.

Lignende boliger i nærheten

Hjem uten bilde
11 Desember 2025
Artillerivollen 12
Til salgs
Har annonselink
Area primary icon 152 m²
Enebolig icon Enebolig
Bed icon 4