Navrabakken 15, Gjesdal

Har annonselink

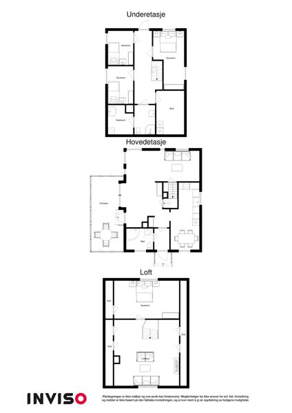
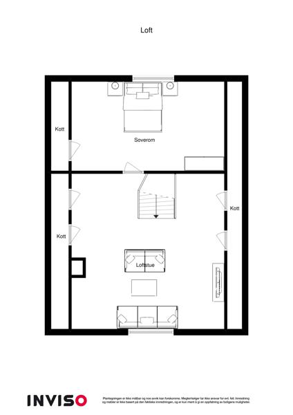
Huset i Navrabakken 15 fra 1992 har en størrelse på 145 m² og inneholder blant annet 2 bad og 4 soverom. Ifølge eier er dette et barnevennlig område, med turterreng i nærheten. Eiendommen ligger sentralt til med balkong/terrasse.

Bilder fra 17 Juli 2019

Egenskaper

Primærrom ikon Primærrom:
145 m2
Bruksareal ikon Bruksareal:
154 m2
Bruttoareal ikon Bruttoareal:
170 m2
Antall soverom ikon Antall soverom:
4
Antall bad ikon Antall bad:
2
Boligtype ikon Boligtype:
Enebolig
Etasje ikon Etasje:
3
Byggear ikon Byggear:
1992
Marketstatus ikon Marketstatus:
Solgt

Fasiliteter

Balkong/Terrasse ikon Balkong/Terrasse
Hage ikon Hage
Barnevennlig ikon Barnevennlig
Sentralt ikon Sentralt
Turterreng ikon Turterreng
Utsikt ikon Utsikt

Salgshistorikk

Dato

Hendelse

Pris

16 Oktober 2019
Tinglyst salg
2 750 000
11 August 2019
2 850 000
04 April 2008
Tinglyst salg
2 500 000
01 Desember 2004
Tinglyst salg
Ukjent pris
26 August 1998
Tinglyst salg
930 000
25 September 1992
Tinglyst salg
72 770
13 Oktober 1986
Tinglyst salg
Ukjent pris

Selge boligSelge bolig?

Finn den beste eiendomsmegleren for ditt boligsalg ved å sammenligne flere meglerkjeder.

Start her

VerdivurderingVerdivurdering?

Få en verdivurdering på boligen om du vurderer å selge, trenger finansieringsbevis eller skal refinansiere boliglånet

Start her

I samarbeid med Marketplace

Vis interesse:

Ønsker du å vise interesse i å kjøpe denne eiendommen eller ønsker ytterligere informasjon, så kan du klikke på “Vis interesse” knappen over. En megler vil ta kontakt for videre dialog.

Legg til i favoritter:

Legg til denne boligen som en favoritt. Vi vil holde deg oppdatert på e-post hvis det er noen endringer for boligen.

Er dette din bolig?:

Er du eier av boligen kan du klikke på “Er dette din bolig?” knappen over. Du vil kunne se om noen har vist interesse for boligen og ha muligheten til å endre bilder samt legge til eller redigere informasjon for å gjøre eiendommen mer attraktiv og klar for et potensielt salg.