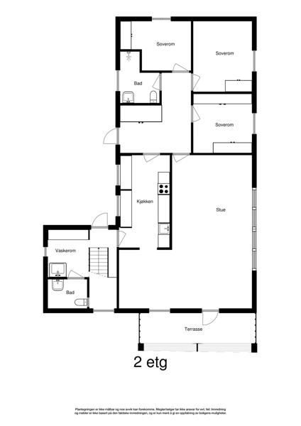
Huset i Lyngveien 10 fra 1968 har en størrelse på 154 m² og inneholder blant annet 2 bad og 4 soverom. Ifølge eier er dette et barnevennlig område, med turterreng i nærheten. Eiendommen ligger sentralt til med parkering, ildsted, og balkong/terrasse.

Bilder fra 11 April 2017

Egenskaper

Primærrom ikon Primærrom:
154 m2
Bruksareal ikon Bruksareal:
206 m2
Bruttoareal ikon Bruttoareal:
233 m2
Antall soverom ikon Antall soverom:
4
Antall bad ikon Antall bad:
2
Boligtype ikon Boligtype:
Enebolig
Etasje ikon Etasje:
1
Byggear ikon Byggear:
1968
Marketstatus ikon Marketstatus:
Solgt

Fasiliteter

Parkering ikon Parkering
Peis/Ildsted ikon Peis/Ildsted
Balkong/Terrasse ikon Balkong/Terrasse
Hage ikon Hage
Barnevennlig ikon Barnevennlig
Sentralt ikon Sentralt
Moderne ikon Moderne
Turterreng ikon Turterreng
Utsikt ikon Utsikt
Bredbånd ikon Bredbånd

Salgshistorikk

Dato

Hendelse

Pris

03 Juli 2017
Tinglyst salg
3 950 000
13 April 2017
3 950 000
20 August 2008
Tinglyst salg
2 900 000
21 Juli 2008
2 950 000
03 Mai 1999
Tinglyst salg
975 000
28 Juli 1994
Tinglyst salg
Ukjent pris
19 September 1986
Tinglyst salg
Ukjent pris

Selge boligSelge bolig?

Finn den beste eiendomsmegleren for ditt boligsalg ved å sammenligne flere meglerkjeder.

Start her

VerdivurderingVerdivurdering?

Få en verdivurdering på boligen om du vurderer å selge, trenger finansieringsbevis eller skal refinansiere boliglånet

Start her

I samarbeid med Marketplace

Vis interesse:

Ønsker du å vise interesse i å kjøpe denne eiendommen eller ønsker ytterligere informasjon, så kan du klikke på “Vis interesse” knappen over. En megler vil ta kontakt for videre dialog.

Legg til i favoritter:

Legg til denne boligen som en favoritt. Vi vil holde deg oppdatert på e-post hvis det er noen endringer for boligen.

Er dette din bolig?:

Er du eier av boligen kan du klikke på “Er dette din bolig?” knappen over. Du vil kunne se om noen har vist interesse for boligen og ha muligheten til å endre bilder samt legge til eller redigere informasjon for å gjøre eiendommen mer attraktiv og klar for et potensielt salg.