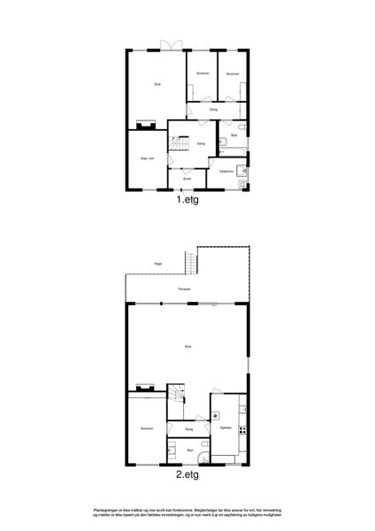
Huset i Johan Castbergs vei 19 fra 1981 har en størrelse på 175 m² og inneholder blant annet 2 bad og 5 soverom. Ifølge eier er dette et barnevennlig område, med turterreng i nærheten. Eiendommen ligger sentralt til med parkering, ildsted, og balkong/terrasse.

Bilder fra 04 August 2016

Egenskaper

Primærrom ikon Primærrom:
175 m2
Bruksareal ikon Bruksareal:
175 m2
Bruttoareal ikon Bruttoareal:
193 m2
Antall soverom ikon Antall soverom:
5
Antall bad ikon Antall bad:
2
Boligtype ikon Boligtype:
Enebolig
Etasje ikon Etasje:
1
Byggear ikon Byggear:
1981
Marketstatus ikon Marketstatus:
Solgt
Bydel:
Alna

Fasiliteter

Parkering ikon Parkering
Peis/Ildsted ikon Peis/Ildsted
Balkong/Terrasse ikon Balkong/Terrasse
Barnevennlig ikon Barnevennlig
Sentralt ikon Sentralt
Moderne ikon Moderne
Turterreng ikon Turterreng
Utsikt ikon Utsikt
Bredbånd ikon Bredbånd

Salgshistorikk

Dato

Hendelse

Pris

20 Oktober 2021
Tinglyst salg
8 400 000
22 Juni 2021
8 900 000
22 Juni 2021
8 900 000
07 Desember 2016
Tinglyst salg
7 700 000
03 August 2016
7 650 000
07 April 1982
Tinglyst salg
Ukjent pris

Selge boligSelge bolig?

Finn den beste eiendomsmegleren for ditt boligsalg ved å sammenligne flere meglerkjeder.

Start her

VerdivurderingVerdivurdering?

Få en verdivurdering på boligen om du vurderer å selge, trenger finansieringsbevis eller skal refinansiere boliglånet

Start her

I samarbeid med Marketplace

Vis interesse:

Ønsker du å vise interesse i å kjøpe denne eiendommen eller ønsker ytterligere informasjon, så kan du klikke på “Vis interesse” knappen over. En megler vil ta kontakt for videre dialog.

Legg til i favoritter:

Legg til denne boligen som en favoritt. Vi vil holde deg oppdatert på e-post hvis det er noen endringer for boligen.

Er dette din bolig?:

Er du eier av boligen kan du klikke på “Er dette din bolig?” knappen over. Du vil kunne se om noen har vist interesse for boligen og ha muligheten til å endre bilder samt legge til eller redigere informasjon for å gjøre eiendommen mer attraktiv og klar for et potensielt salg.