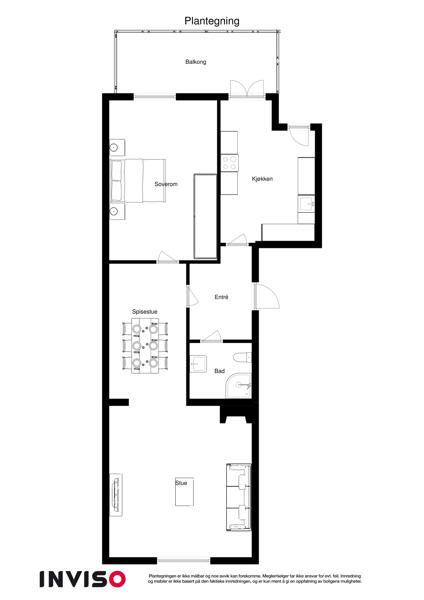
Leiligheten i Jacob Aalls gate 9D fra 1928 har en størrelse på 68 m² og inneholder blant annet 1 bad og 2 soverom.

Bilder fra 07 August 2019

Egenskaper

Primærrom ikon Primærrom:
68 m2
Bruksareal ikon Bruksareal:
79 m2
Bruttoareal ikon Bruttoareal:
75 m2
Antall soverom ikon Antall soverom:
2
Antall bad ikon Antall bad:
1
Boligtype ikon Boligtype:
Leilighet
Etasje ikon Etasje:
3
Byggear ikon Byggear:
1928
Marketstatus ikon Marketstatus:
Til salgs
Bydel:
Frogner

Fasiliteter

Salgshistorikk

Dato

Hendelse

Pris

08 Mars 2026
9 250 000
24 April 2020
Tinglyst salg
5 400 000
01 Februar 2020
4 950 000
16 Januar 2020
4 950 000
02 Februar 2012
Tinglyst salg
3 450 000
10 Desember 2011
3 450 000
20 September 2006
Tinglyst salg
2 955 000
16 November 1993
Tinglyst salg
670 000
27 Juni 1984
Tinglyst salg
Ukjent pris

Selge boligSelge bolig?

Finn den beste eiendomsmegleren for ditt boligsalg ved å sammenligne flere meglerkjeder.

Start her

VerdivurderingVerdivurdering?

Få en verdivurdering på boligen om du vurderer å selge, trenger finansieringsbevis eller skal refinansiere boliglånet

Start her

I samarbeid med Marketplace

Vis interesse:

Ønsker du å vise interesse i å kjøpe denne eiendommen eller ønsker ytterligere informasjon, så kan du klikke på “Vis interesse” knappen over. En megler vil ta kontakt for videre dialog.

Legg til i favoritter:

Legg til denne boligen som en favoritt. Vi vil holde deg oppdatert på e-post hvis det er noen endringer for boligen.

Er dette din bolig?:

Er du eier av boligen kan du klikke på “Er dette din bolig?” knappen over. Du vil kunne se om noen har vist interesse for boligen og ha muligheten til å endre bilder samt legge til eller redigere informasjon for å gjøre eiendommen mer attraktiv og klar for et potensielt salg.

Lignende boliger i nærheten

16 Desember 2025
Maries gate 5A
Solgt Desember 2025
Har annonselink
H0101
Area primary icon 71 m²
Leilighet icon Leilighet
Bed icon 2
Hjem uten bilde
10 November 2025
Neuberggata 18A
Solgt November 2025
Har annonselink
H0101
Area primary icon 78 m²
Leilighet icon Leilighet
Bed icon 2
Hjem uten bilde
18 Mars 2026
Neuberggata 10C
Har annonselink
H0501
Area primary icon 72 m²
Leilighet icon Leilighet
Shower icon 1
Bed icon 2