Hatlestad terrasse 75, Bergen

Har annonselink

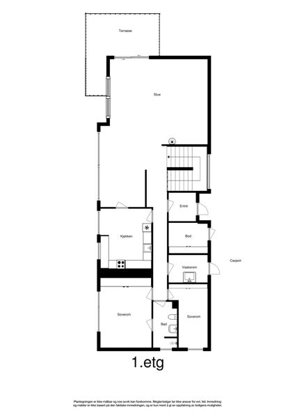
Huset i Hatlestad terrasse 75 fra 1973 har en størrelse på 218 m² og inneholder blant annet 6 soverom. Ifølge eier er dette et barnevennlig område, med turterreng i nærheten. Eiendommen ligger sentralt til med parkering, ildsted, og balkong/terrasse.

Bilder fra 03 Mai 2018

Egenskaper

Primærrom ikon Primærrom:
218 m2
Bruksareal ikon Bruksareal:
235 m2
Bruttoareal ikon Bruttoareal:
252 m2
Antall soverom ikon Antall soverom:
6
Boligtype ikon Boligtype:
Enebolig
Etasje ikon Etasje:
1
Byggear ikon Byggear:
1973
Marketstatus ikon Marketstatus:
Solgt
Bydel:
Fana

Fasiliteter

Parkering ikon Parkering
Peis/Ildsted ikon Peis/Ildsted
Balkong/Terrasse ikon Balkong/Terrasse
Barnevennlig ikon Barnevennlig
Sentralt ikon Sentralt
Turterreng ikon Turterreng
Utsikt ikon Utsikt
Bredbånd ikon Bredbånd

Salgshistorikk

Dato

Hendelse

Pris

16 August 2018
Tinglyst salg
4 300 000
26 Mai 2018
4 300 000
03 November 2014
Tinglyst salg
Ukjent pris
01 Oktober 1973
Tinglyst salg
Ukjent pris

Selge boligSelge bolig?

Finn den beste eiendomsmegleren for ditt boligsalg ved å sammenligne flere meglerkjeder.

Start her

VerdivurderingVerdivurdering?

Få en verdivurdering på boligen om du vurderer å selge, trenger finansieringsbevis eller skal refinansiere boliglånet

Start her

I samarbeid med Marketplace

Vis interesse:

Ønsker du å vise interesse i å kjøpe denne eiendommen eller ønsker ytterligere informasjon, så kan du klikke på “Vis interesse” knappen over. En megler vil ta kontakt for videre dialog.

Legg til i favoritter:

Legg til denne boligen som en favoritt. Vi vil holde deg oppdatert på e-post hvis det er noen endringer for boligen.

Er dette din bolig?:

Er du eier av boligen kan du klikke på “Er dette din bolig?” knappen over. Du vil kunne se om noen har vist interesse for boligen og ha muligheten til å endre bilder samt legge til eller redigere informasjon for å gjøre eiendommen mer attraktiv og klar for et potensielt salg.