Finstadlia 47, Lørenskog
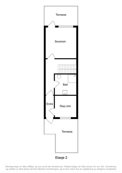
Denne eiendommen i Finstadlia 47 47 fra 1978 har en størrelse på 72 m² og inneholder blant annet 1 soverom. Ifølge eier er dette et barnevennlig område, med turterreng i nærheten. Eiendommen ligger sentralt til med parkering, og balkong/terrasse.
Bilder fra
17
Desember
2013
Egenskaper
72 m2
72 m2
80 m2
1
Rekkehus
1978
Fasiliteter
Salgshistorikk
Dato
Hendelse
Pris
Ukjent dato
Venter på salgspris