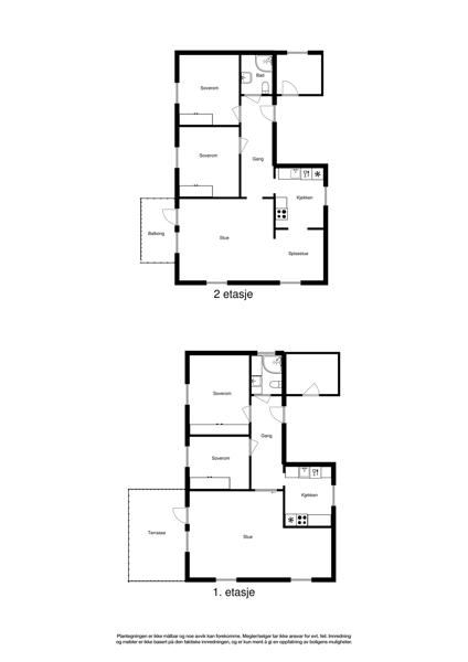
Denne eiendommen i Elvegata 4 fra 1959 har en størrelse på 70 m² og inneholder blant annet 1 bad og 3 soverom.

Bilder fra 31 Juli 2017

Egenskaper

Primærrom ikon Primærrom:
70 m2
Bruksareal ikon Bruksareal:
86 m2
Antall soverom ikon Antall soverom:
3
Antall bad ikon Antall bad:
1
Boligtype ikon Boligtype:
Tomannsbolig
Etasje ikon Etasje:
2
Byggear ikon Byggear:
1959
Marketstatus ikon Marketstatus:
Til salgs

Fasiliteter

Salgshistorikk

Dato

Hendelse

Pris

04 Februar 2026
2 390 000
06 August 2025
2 450 000
02 August 2024
2 750 000
22 Januar 2019
Tinglyst salg
1 750 000
16 November 2018
1 790 000
19 Oktober 2016
Tinglyst salg
1 480 000
31 Oktober 2011
Tinglyst salg
Ukjent pris
25 Januar 2007
Tinglyst salg
52 244

Selge boligSelge bolig?

Finn den beste eiendomsmegleren for ditt boligsalg ved å sammenligne flere meglerkjeder.

Start her

VerdivurderingVerdivurdering?

Få en verdivurdering på boligen om du vurderer å selge, trenger finansieringsbevis eller skal refinansiere boliglånet

Start her

I samarbeid med Marketplace

Vis interesse:

Ønsker du å vise interesse i å kjøpe denne eiendommen eller ønsker ytterligere informasjon, så kan du klikke på “Vis interesse” knappen over. En megler vil ta kontakt for videre dialog.

Legg til i favoritter:

Legg til denne boligen som en favoritt. Vi vil holde deg oppdatert på e-post hvis det er noen endringer for boligen.

Er dette din bolig?:

Er du eier av boligen kan du klikke på “Er dette din bolig?” knappen over. Du vil kunne se om noen har vist interesse for boligen og ha muligheten til å endre bilder samt legge til eller redigere informasjon for å gjøre eiendommen mer attraktiv og klar for et potensielt salg.