Chr. Magnus Falsens gate 10B, Skien

Har annonselink

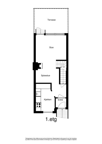
Denne eiendommen i Chr. Magnus Falsens gate 10B 10B fra 1962 har en størrelse på 105 m² og inneholder blant annet 2 soverom. Ifølge eier er dette et barnevennlig område, med turterreng i nærheten. Eiendommen ligger sentralt til med ildsted, og balkong/terrasse.

Bilder fra 19 Mai 2017

Egenskaper

Primærrom ikon Primærrom:
105 m2
Bruksareal ikon Bruksareal:
117 m2
Bruttoareal ikon Bruttoareal:
135 m2
Antall soverom ikon Antall soverom:
2
Boligtype ikon Boligtype:
Rekkehus
Byggear ikon Byggear:
1962

Fasiliteter

Peis/Ildsted ikon Peis/Ildsted
Balkong/Terrasse ikon Balkong/Terrasse
Hage ikon Hage
Barnevennlig ikon Barnevennlig
Sentralt ikon Sentralt
Turterreng ikon Turterreng
Bredbånd ikon Bredbånd

Salgshistorikk

Dato

Hendelse

Pris

Ukjent dato
Venter på salgspris
18 Mai 2017
2 080 000

Selge boligSelge bolig?

Finn den beste eiendomsmegleren for ditt boligsalg ved å sammenligne flere meglerkjeder.

Start her

VerdivurderingVerdivurdering?

Få en verdivurdering på boligen om du vurderer å selge, trenger finansieringsbevis eller skal refinansiere boliglånet

Start her

I samarbeid med Marketplace

Vis interesse:

Ønsker du å vise interesse i å kjøpe denne eiendommen eller ønsker ytterligere informasjon, så kan du klikke på “Vis interesse” knappen over. En megler vil ta kontakt for videre dialog.

Legg til i favoritter:

Legg til denne boligen som en favoritt. Vi vil holde deg oppdatert på e-post hvis det er noen endringer for boligen.

Er dette din bolig?:

Er du eier av boligen kan du klikke på “Er dette din bolig?” knappen over. Du vil kunne se om noen har vist interesse for boligen og ha muligheten til å endre bilder samt legge til eller redigere informasjon for å gjøre eiendommen mer attraktiv og klar for et potensielt salg.