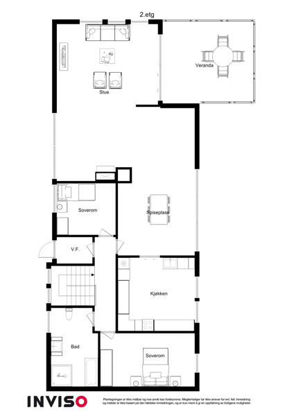
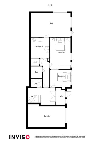
Huset i Bruvikvegen 212 fra 1971 har en størrelse på 159 m² og inneholder blant annet 4 soverom.

Bilder fra 13 Januar 2020

Egenskaper

Primærrom ikon Primærrom:
159 m2
Bruksareal ikon Bruksareal:
202 m2
Bruttoareal ikon Bruttoareal:
222 m2
Antall soverom ikon Antall soverom:
4
Boligtype ikon Boligtype:
Enebolig
Etasje ikon Etasje:
1
Byggear ikon Byggear:
1971
Marketstatus ikon Marketstatus:
Solgt

Fasiliteter

Salgshistorikk

Dato

Hendelse

Pris

13 Januar 2025
Tinglyst salg
1 400 000
17 November 2020
Tinglyst salg
2 800 000
16 August 2020
2 800 000
25 Februar 2020
2 900 000
08 Juli 2015
Tinglyst salg
2 865 000
16 Mai 2015
2 900 000
01 April 2015
2 690 000
29 Desember 2010
Tinglyst salg
2 340 000
19 Januar 1971
Tinglyst salg
Ukjent pris

Selge boligSelge bolig?

Finn den beste eiendomsmegleren for ditt boligsalg ved å sammenligne flere meglerkjeder.

Start her

VerdivurderingVerdivurdering?

Få en verdivurdering på boligen om du vurderer å selge, trenger finansieringsbevis eller skal refinansiere boliglånet

Start her

I samarbeid med Marketplace

Vis interesse:

Ønsker du å vise interesse i å kjøpe denne eiendommen eller ønsker ytterligere informasjon, så kan du klikke på “Vis interesse” knappen over. En megler vil ta kontakt for videre dialog.

Legg til i favoritter:

Legg til denne boligen som en favoritt. Vi vil holde deg oppdatert på e-post hvis det er noen endringer for boligen.

Er dette din bolig?:

Er du eier av boligen kan du klikke på “Er dette din bolig?” knappen over. Du vil kunne se om noen har vist interesse for boligen og ha muligheten til å endre bilder samt legge til eller redigere informasjon for å gjøre eiendommen mer attraktiv og klar for et potensielt salg.