Bergheimveien 6, Ringerike

Har annonselink

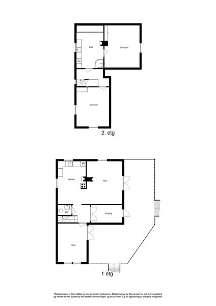
Denne eiendommen i Bergheimveien 6 fra 1845 har en størrelse på 117 m² og inneholder blant annet 2 soverom. Ifølge eier er dette et barnevennlig område, med turterreng i nærheten. Eiendommen har parkering, ildsted, og balkong/terrasse.

Bilder fra 30 Juli 2015

Egenskaper

Primærrom ikon Primærrom:
117 m2
Bruksareal ikon Bruksareal:
117 m2
Bruttoareal ikon Bruttoareal:
124 m2
Antall soverom ikon Antall soverom:
2
Boligtype ikon Boligtype:
Gårdsbruk/småbruk
Etasje ikon Etasje:
1
Byggear ikon Byggear:
1845
Marketstatus ikon Marketstatus:
Solgt

Fasiliteter

Parkering ikon Parkering
Peis/Ildsted ikon Peis/Ildsted
Balkong/Terrasse ikon Balkong/Terrasse
Hage ikon Hage
Barnevennlig ikon Barnevennlig
Turterreng ikon Turterreng

Salgshistorikk

Dato

Hendelse

Pris

11 November 2019
Tinglyst salg
1 200 000
24 November 2015
Tinglyst salg
3 200 000
12 August 2015
2 600 000
12 November 2014
Tinglyst salg
125 000
09 August 2011
Tinglyst salg
2 300 000
17 Februar 2009
Tinglyst salg
Ukjent pris
16 September 2003
Tinglyst salg
1 175 000
03 Mai 2002
Tinglyst salg
1 200 000
17 Februar 1997
Tinglyst salg
200 000
04 Oktober 1985
Tinglyst salg
85 000

Selge boligSelge bolig?

Finn den beste eiendomsmegleren for ditt boligsalg ved å sammenligne flere meglerkjeder.

Start her

VerdivurderingVerdivurdering?

Få en verdivurdering på boligen om du vurderer å selge, trenger finansieringsbevis eller skal refinansiere boliglånet

Start her

I samarbeid med Marketplace

Vis interesse:

Ønsker du å vise interesse i å kjøpe denne eiendommen eller ønsker ytterligere informasjon, så kan du klikke på “Vis interesse” knappen over. En megler vil ta kontakt for videre dialog.

Legg til i favoritter:

Legg til denne boligen som en favoritt. Vi vil holde deg oppdatert på e-post hvis det er noen endringer for boligen.

Er dette din bolig?:

Er du eier av boligen kan du klikke på “Er dette din bolig?” knappen over. Du vil kunne se om noen har vist interesse for boligen og ha muligheten til å endre bilder samt legge til eller redigere informasjon for å gjøre eiendommen mer attraktiv og klar for et potensielt salg.