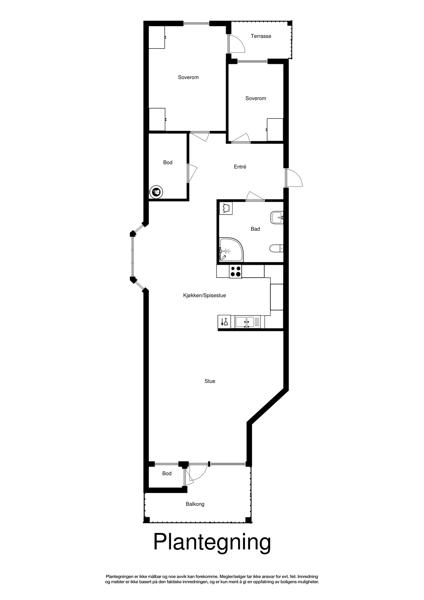
Leiligheten i Bergelandsgata 51 fra 1994 har en størrelse på 88 m² og inneholder blant annet 1 bad og 2 soverom.

Bilder fra 07 Juli 2015
Bilder fra 23 Januar 2017

Egenskaper

Primærrom ikon Primærrom:
88 m2
Bruksareal ikon Bruksareal:
97 m2
Bruttoareal ikon Bruttoareal:
100 m2
Antall soverom ikon Antall soverom:
2
Antall bad ikon Antall bad:
1
Boligtype ikon Boligtype:
Leilighet
Etasje ikon Etasje:
5
Byggear ikon Byggear:
1994
Marketstatus ikon Marketstatus:
Solgt
Bydel:
Storhaug

Fasiliteter

Salgshistorikk

Dato

Hendelse

Pris

04 Februar 2025
Tinglyst salg
6 490 000
18 August 2024
6 490 000
02 Mars 2017
Tinglyst salg
4 750 000
16 Februar 2017
4 500 000
20 Oktober 2015
Tinglyst salg
4 125 000
14 Juli 2015
4 500 000
24 August 2005
Tinglyst salg
1 075 000
24 August 2005
Tinglyst salg
Ukjent pris
22 August 1994
Tinglyst salg
840 000
Ukjent dato
Tinglyst salg
Ukjent pris

Selge boligSelge bolig?

Finn den beste eiendomsmegleren for ditt boligsalg ved å sammenligne flere meglerkjeder.

Start her

VerdivurderingVerdivurdering?

Få en verdivurdering på boligen om du vurderer å selge, trenger finansieringsbevis eller skal refinansiere boliglånet

Start her

I samarbeid med Marketplace

Vis interesse:

Ønsker du å vise interesse i å kjøpe denne eiendommen eller ønsker ytterligere informasjon, så kan du klikke på “Vis interesse” knappen over. En megler vil ta kontakt for videre dialog.

Legg til i favoritter:

Legg til denne boligen som en favoritt. Vi vil holde deg oppdatert på e-post hvis det er noen endringer for boligen.

Er dette din bolig?:

Er du eier av boligen kan du klikke på “Er dette din bolig?” knappen over. Du vil kunne se om noen har vist interesse for boligen og ha muligheten til å endre bilder samt legge til eller redigere informasjon for å gjøre eiendommen mer attraktiv og klar for et potensielt salg.

Lignende boliger i nærheten

Hjem uten bilde
12 Desember 2025
Bergelandsgata 51
Har annonselink
H0106
Area primary icon 88 m²
Leilighet icon Leilighet
Shower icon 1
Bed icon 2