Børtindgata 23B, Bodø

Har annonselink

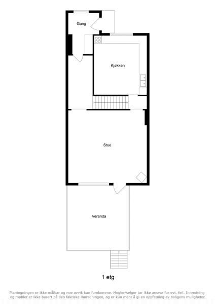
Leiligheten i Børtindgata 23B fra 1955 har en størrelse på 111 m² og inneholder blant annet 1 bad og 3 soverom. Ifølge eier er dette et barnevennlig område, med turterreng i nærheten. Eiendommen ligger sentralt til med ildsted, og balkong/terrasse.

Bilder fra 22 Mai 2014

Egenskaper

Primærrom ikon Primærrom:
111 m2
Bruksareal ikon Bruksareal:
127 m2
Bruttoareal ikon Bruttoareal:
140 m2
Antall soverom ikon Antall soverom:
3
Antall bad ikon Antall bad:
1
Boligtype ikon Boligtype:
Leilighet
Etasje ikon Etasje:
1
Byggear ikon Byggear:
1955
Marketstatus ikon Marketstatus:
Solgt

Fasiliteter

Peis/Ildsted ikon Peis/Ildsted
Balkong/Terrasse ikon Balkong/Terrasse
Hage ikon Hage
Barnevennlig ikon Barnevennlig
Sentralt ikon Sentralt
Turterreng ikon Turterreng
Bredbånd ikon Bredbånd

Salgshistorikk

Dato

Hendelse

Pris

02 Oktober 2025
Tinglyst salg
3 765 000
10 Februar 2016
Tinglyst salg
2 780 000
26 Juni 2014
Tinglyst salg
2 750 000
08 Mai 2014
2 720 000
15 Januar 2007
Tinglyst salg
700 000
19 Oktober 2004
Tinglyst salg
1 300 000
27 Juli 2004
Tinglyst salg
Ukjent pris
18 August 1992
Tinglyst salg
3 000
Ukjent dato
Tinglyst salg
Ukjent pris
14 Januar 1967
Tinglyst salg
Ukjent pris
03 November 1962
Tinglyst salg
Ukjent pris

Selge boligSelge bolig?

Finn den beste eiendomsmegleren for ditt boligsalg ved å sammenligne flere meglerkjeder.

Start her

VerdivurderingVerdivurdering?

Få en verdivurdering på boligen om du vurderer å selge, trenger finansieringsbevis eller skal refinansiere boliglånet

Start her

I samarbeid med Marketplace

Vis interesse:

Ønsker du å vise interesse i å kjøpe denne eiendommen eller ønsker ytterligere informasjon, så kan du klikke på “Vis interesse” knappen over. En megler vil ta kontakt for videre dialog.

Legg til i favoritter:

Legg til denne boligen som en favoritt. Vi vil holde deg oppdatert på e-post hvis det er noen endringer for boligen.

Er dette din bolig?:

Er du eier av boligen kan du klikke på “Er dette din bolig?” knappen over. Du vil kunne se om noen har vist interesse for boligen og ha muligheten til å endre bilder samt legge til eller redigere informasjon for å gjøre eiendommen mer attraktiv og klar for et potensielt salg.