Bønsmovegen 18, Eidsvoll
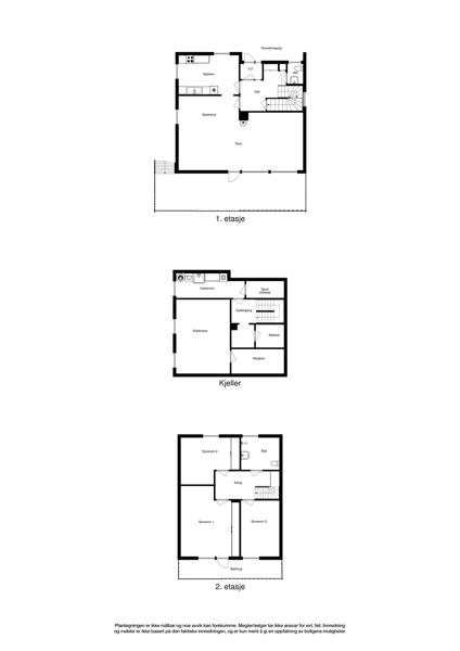
Huset i Bønsmovegen 18 fra 1979 har en størrelse på 155 m² og inneholder blant annet 3 soverom. Ifølge eier er dette et barnevennlig område, med turterreng i nærheten. Eiendommen ligger sentralt til med ildsted, og balkong/terrasse.
Bilder fra
30
Juni
2016
Egenskaper
155 m2
162 m2
179 m2
3
Enebolig
1
1979
Solgt
Fasiliteter
Salgshistorikk
Dato
Hendelse
Pris
14 Oktober 2016
Tinglyst salg
3 300 000
19 April 1979
Tinglyst salg
Ukjent pris