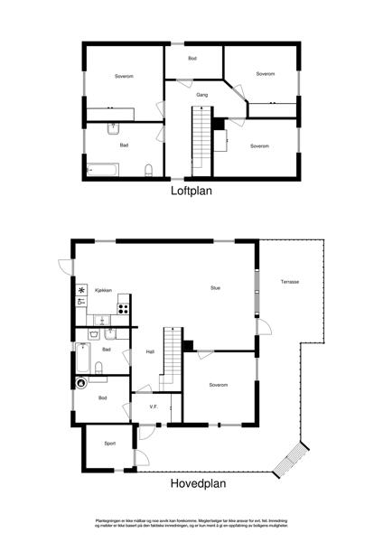
Huset i Åsringen 71 fra 2000 har en størrelse på 129 m² og inneholder blant annet 2 bad og 4 soverom. Ifølge eier er dette et barnevennlig område. Eiendommen ligger sentralt til med parkering, ildsted, og balkong/terrasse.

Bilder fra 22 Februar 2016

Egenskaper

Primærrom ikon Primærrom:
129 m2
Bruksareal ikon Bruksareal:
163 m2
Bruttoareal ikon Bruttoareal:
175 m2
Antall soverom ikon Antall soverom:
4
Antall bad ikon Antall bad:
2
Boligtype ikon Boligtype:
Enebolig
Etasje ikon Etasje:
2
Byggear ikon Byggear:
2000
Marketstatus ikon Marketstatus:
Solgt

Fasiliteter

Parkering ikon Parkering
Peis/Ildsted ikon Peis/Ildsted
Balkong/Terrasse ikon Balkong/Terrasse
Hage ikon Hage
Barnevennlig ikon Barnevennlig
Sentralt ikon Sentralt
Bredbånd ikon Bredbånd

Salgshistorikk

Dato

Hendelse

Pris

16 November 2021
Tinglyst salg
3 000 000
19 November 2020
3 650 000
19 April 2016
Tinglyst salg
2 750 000
20 Mars 2016
2 820 000
04 September 2000
Tinglyst salg
195 000
11 April 2000
Tinglyst salg
195 000
20 Desember 1993
Tinglyst salg
300 000
26 Mai 1992
Tinglyst salg
Ukjent pris
13 Desember 1974
Tinglyst salg
Ukjent pris

Selge boligSelge bolig?

Finn den beste eiendomsmegleren for ditt boligsalg ved å sammenligne flere meglerkjeder.

Start her

VerdivurderingVerdivurdering?

Få en verdivurdering på boligen om du vurderer å selge, trenger finansieringsbevis eller skal refinansiere boliglånet

Start her

I samarbeid med Marketplace

Vis interesse:

Ønsker du å vise interesse i å kjøpe denne eiendommen eller ønsker ytterligere informasjon, så kan du klikke på “Vis interesse” knappen over. En megler vil ta kontakt for videre dialog.

Legg til i favoritter:

Legg til denne boligen som en favoritt. Vi vil holde deg oppdatert på e-post hvis det er noen endringer for boligen.

Er dette din bolig?:

Er du eier av boligen kan du klikke på “Er dette din bolig?” knappen over. Du vil kunne se om noen har vist interesse for boligen og ha muligheten til å endre bilder samt legge til eller redigere informasjon for å gjøre eiendommen mer attraktiv og klar for et potensielt salg.