Straumsfjellvegen 5A, Øygarden
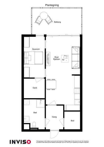
The apartment in Straumsfjellvegen 5A from 2017 have a size of 51 m² and contains among other things 1 bathroom and 1 bedroom. According to the owner, there is hiking terrain nearby. The property is centrally located with lift, parking, and balcony/terrace.
Images from
03
September
2019
Characteristics
51 m2
55 m2
64 m2
1
1
Apartment
2
2017
Sold
Facilities
Sale history
Date
Action
Price
10 November 2025
Registered sale
4 500 000
25 October 2019
Registered sale
2 600 000
15 March 2017
Registered sale
2 400 000
15 February 2012
Registered sale
54 000 000