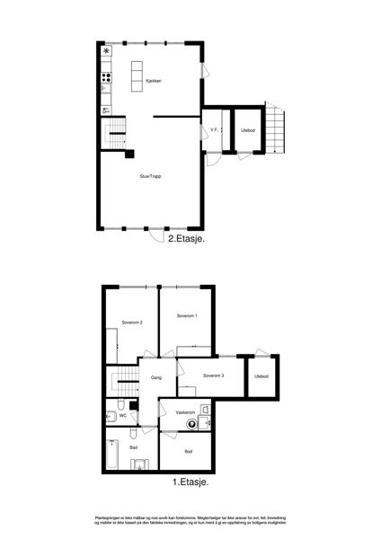
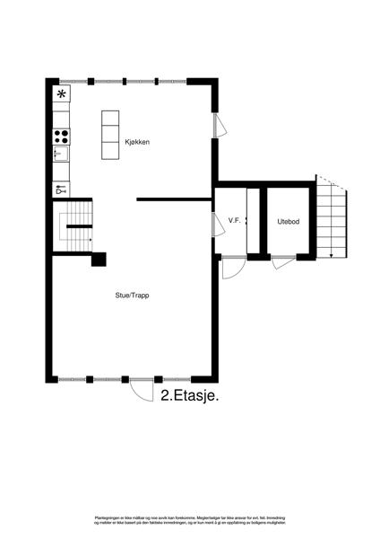
The house in Karlslia 38 from 2003 have a size of 123 m² and contains among other things 1 bathroom and 3 bedrooms. According to the owner, this is a child-friendly area. The property has parking, fireplace, and balcony/terrace.

Images from 11 August 2016
Images from 19 March 2018

Characteristics

Area primary icon Area primary:
123 m2
Area usable icon Area usable:
136 m2
Area gross icon Area gross:
153 m2
Bedrooms icon Bedrooms:
3
Bathrooms icon Bathrooms:
1
Unittype icon Unittype:
Detached house
Floor icon Floor:
1
Construction year icon Construction year:
2003
Marketstatus icon Marketstatus:
Sold
District:
Ytrebygda

Facilities

Parking icon Parking
Fireplace icon Fireplace
Balcony icon Balcony
Garden icon Garden
Child friendly icon Child friendly
Modern icon Modern
View icon View
Broadband icon Broadband

Sale history

Date

Action

Price

13 October 2025
Registered sale
3 541 666
08 August 2018
Registered sale
4 650 000
03 May 2018
4 600 000
04 October 2016
Registered sale
Unknown price
04 October 2016
Registered sale
4 800 000
28 August 2016
4 000 000
28 April 2009
Registered sale
3 425 000
28 March 2003
Registered sale
1 795 000
02 November 2000
Registered sale
4 797 710

Sell your homeSelge bolig?

Finn den beste eiendomsmegleren for ditt boligsalg ved å sammenligne flere meglerkjeder.

Start her

VerdivurderingVerdivurdering?

Få en verdivurdering på boligen om du vurderer å selge, trenger finansieringsbevis eller skal refinansiere boliglånet

Start her

In partnership with Marketplace

Show interest:

If you want to show interest in buying this property or want further information, you can click on the "Show interest" button above. A broker will contact you for further dialogue.

Add to favorites:

Add this home as a favorite. We will keep you updated by email if there are any changes to the home.

Is this your home?:

If you are the owner of the home, you can click on "Is this your home?" button above. You will be able to see if anyone has shown interest in the home and have the opportunity to change photos as well as add or edit information to make the property more attractive and ready for a potential sale.