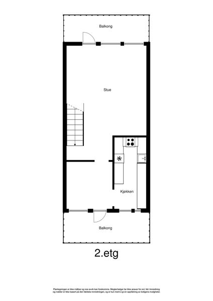
This property in Hasselstien 71 from 1976 have a size of 107 m² and contains among other things 2 bedrooms.

Images from 25 October 2017

Characteristics

Area primary icon Area primary:
107 m2
Area usable icon Area usable:
116 m2
Area gross icon Area gross:
116 m2
Bedrooms icon Bedrooms:
2
Unittype icon Unittype:
Townhouse
Floor icon Floor:
2
Construction year icon Construction year:
1976
Marketstatus icon Marketstatus:
For sale

Facilities

Sale history

Date

Action

Price

24 November 2025
6 350 000
14 November 2025
6 500 000
05 February 2018
Registered sale
4 350 000
13 November 2017
4 350 000
27 July 2009
Registered sale
Unknown price
20 February 1996
Registered sale
885 000
08 June 1988
Registered sale
870 000

Sell your homeSelge bolig?

Finn den beste eiendomsmegleren for ditt boligsalg ved å sammenligne flere meglerkjeder.

Start her

VerdivurderingVerdivurdering?

Få en verdivurdering på boligen om du vurderer å selge, trenger finansieringsbevis eller skal refinansiere boliglånet

Start her

In partnership with Marketplace

Show interest:

If you want to show interest in buying this property or want further information, you can click on the "Show interest" button above. A broker will contact you for further dialogue.

Add to favorites:

Add this home as a favorite. We will keep you updated by email if there are any changes to the home.

Is this your home?:

If you are the owner of the home, you can click on "Is this your home?" button above. You will be able to see if anyone has shown interest in the home and have the opportunity to change photos as well as add or edit information to make the property more attractive and ready for a potential sale.