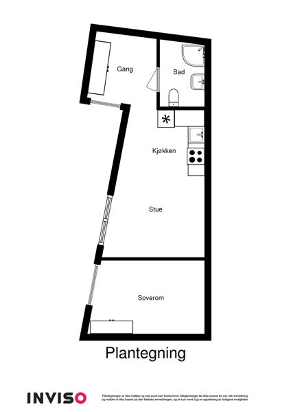
The apartment in Bakkegaten 2 from 1880 have a size of 32 m² and contains among other things 1 bedroom.

Images from 20 April 2015

Characteristics

Area primary icon Area primary:
32 m2
Area usable icon Area usable:
39 m2
Area gross icon Area gross:
35 m2
Bedrooms icon Bedrooms:
1
Unittype icon Unittype:
Apartment
Floor icon Floor:
3
Construction year icon Construction year:
1880
Marketstatus icon Marketstatus:
Sold
District:
Bergenhus

Facilities

Sale history

Date

Action

Price

04 August 2025
Registered sale
3 200 000
16 April 2025
2 690 000
23 April 2020
Registered sale
2 280 000
08 March 2020
2 280 000
24 February 2020
2 280 000
06 September 2018
2 300 000
07 July 2015
Registered sale
2 125 000
09 May 2015
1 900 000
29 May 2012
Registered sale
1 460 000
30 April 2012
1 290 000
17 August 2004
Registered sale
Unknown price

Sell your homeSelge bolig?

Finn den beste eiendomsmegleren for ditt boligsalg ved å sammenligne flere meglerkjeder.

Start her

VerdivurderingVerdivurdering?

Få en verdivurdering på boligen om du vurderer å selge, trenger finansieringsbevis eller skal refinansiere boliglånet

Start her

In partnership with Marketplace

Show interest:

If you want to show interest in buying this property or want further information, you can click on the "Show interest" button above. A broker will contact you for further dialogue.

Add to favorites:

Add this home as a favorite. We will keep you updated by email if there are any changes to the home.

Is this your home?:

If you are the owner of the home, you can click on "Is this your home?" button above. You will be able to see if anyone has shown interest in the home and have the opportunity to change photos as well as add or edit information to make the property more attractive and ready for a potential sale.

Similar homes nearby

Home without image
27 June 2025
Bakkegaten 2
Sold June 2025
Have ad link
U0101
Area primary icon 38 m²
Apartment icon Apartment
Bed icon 1
Home without image
28 August 2025
Skuteviksveien 23B
For sale
Have ad link
U0101
Area primary icon 41 m²
Apartment icon Apartment
Bed icon 1
Home without image
08 August 2025
Hilbrandt Meyers gate 1B
Sold August 2025
Have ad link
H0103
Area primary icon 40 m²
Apartment icon Apartment
Shower icon 1
Bed icon 1