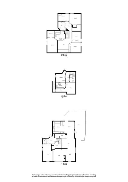
The house in Welhavens vei 20 from 2013 have a size of 134 m² and contains among other things 2 bathrooms and 3 bedrooms.

Images from 20 March 2017
Images from 15 November 2017

Characteristics

Area primary icon Area primary:
134 m2
Area usable icon Area usable:
146 m2
Area gross icon Area gross:
165 m2
Bedrooms icon Bedrooms:
3
Bathrooms icon Bathrooms:
2
Unittype icon Unittype:
Detached house
Floor icon Floor:
3
Construction year icon Construction year:
2013
Marketstatus icon Marketstatus:
Sold

Facilities

Sale history

Date

Action

Price

10 November 2025
Registered sale
5 850 000
28 April 2025
6 190 000
07 May 2018
Registered sale
4 700 000
10 February 2018
4 800 000
09 March 2017
4 990 000
29 December 2016
5 190 000
07 April 2014
Registered sale
5 100 000
04 October 2013
Registered sale
5 290 000
08 July 2008
Registered sale
16 500 000

Sell your homeSelge bolig?

Finn den beste eiendomsmegleren for ditt boligsalg ved å sammenligne flere meglerkjeder.

Start her

VerdivurderingVerdivurdering?

Få en verdivurdering på boligen om du vurderer å selge, trenger finansieringsbevis eller skal refinansiere boliglånet

Start her

In partnership with Marketplace

Show interest:

If you want to show interest in buying this property or want further information, you can click on the "Show interest" button above. A broker will contact you for further dialogue.

Add to favorites:

Add this home as a favorite. We will keep you updated by email if there are any changes to the home.

Is this your home?:

If you are the owner of the home, you can click on "Is this your home?" button above. You will be able to see if anyone has shown interest in the home and have the opportunity to change photos as well as add or edit information to make the property more attractive and ready for a potential sale.