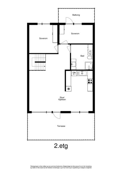
The apartment in Fogdeveien 62B from 2007 have a size of 118 m² and contains among other things 2 bathrooms and 4 bedrooms. According to the owner, this is a child-friendly area, with hiking terrain nearby. The property has parking, and balcony/terrace.

Images from 20 April 2018

Characteristics

Area primary icon Area primary:
118 m2
Area usable icon Area usable:
126 m2
Area gross icon Area gross:
140 m2
Bedrooms icon Bedrooms:
4
Bathrooms icon Bathrooms:
2
Unittype icon Unittype:
Apartment
Floor icon Floor:
1
Construction year icon Construction year:
2007
Marketstatus icon Marketstatus:
Sold

Facilities

Parking icon Parking
Balcony icon Balcony
Garden icon Garden
Child friendly icon Child friendly
Modern icon Modern
Hiking terrain icon Hiking terrain
View icon View
Broadband icon Broadband

Sale history

Date

Action

Price

10 November 2025
Registered sale
4 000 000
26 July 2018
Registered sale
1 800 000
05 May 2018
1 500 000
03 November 2016
Registered sale
1 380 000
16 September 2016
1 300 000
05 May 2014
Registered sale
900 000
27 February 2014
900 000
27 July 2010
Registered sale
600 000
01 June 2007
Registered sale
Unknown price

Sell your homeSelge bolig?

Finn den beste eiendomsmegleren for ditt boligsalg ved å sammenligne flere meglerkjeder.

Start her

VerdivurderingVerdivurdering?

Få en verdivurdering på boligen om du vurderer å selge, trenger finansieringsbevis eller skal refinansiere boliglånet

Start her

In partnership with Marketplace

Show interest:

If you want to show interest in buying this property or want further information, you can click on the "Show interest" button above. A broker will contact you for further dialogue.

Add to favorites:

Add this home as a favorite. We will keep you updated by email if there are any changes to the home.

Is this your home?:

If you are the owner of the home, you can click on "Is this your home?" button above. You will be able to see if anyone has shown interest in the home and have the opportunity to change photos as well as add or edit information to make the property more attractive and ready for a potential sale.

Recently sold homes in the same cooperative

The apartment is part of Fogdeveien Borettslag.

07 August 2025
Fogdeveien 64A
Sold August 2025
Have ad link
Area primary icon 116 m²
Townhouse icon Townhouse
Shower icon 2
Bed icon 4
Home without image
18 February 2025
Fogdeveien 60B
Sold February 2025
Have ad link
Semi-detached house icon Semi-detached house
Shower icon 2
Bed icon 4
Home without image
29 September 2023
Fogdeveien 62C
Sold September 2023
Have ad link
Area primary icon 116 m²
Apartment icon Apartment
Shower icon 2
Bed icon 4